
EDIT.
SHEET
DRAW. NO.
CUST.
TITLE
1
6
DESCRIPTIONDESIG.DATE
01 05.12.14 ICHINOSE
Connection of Ethernet Connecto
Panel
-65563EN/01
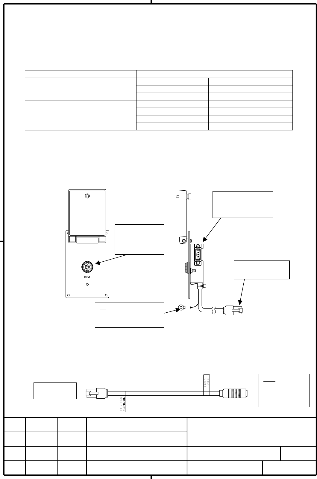
Ethernet Connector Panel
Ethernet Connector Panel enables user to connect/disconnect Ethernet cable at the front panel of the
cabinet with ease.
1. Specification
Name Specification
A02B-0303-C194 with 1m cable
A02B-0303-C195 with 2m cable
Ethernet Connector Panel
A02B-0303-C196 with 5m cable
A02B-0303-K820 cross cable 1.5m
A02B-0303-K821 cross cable 5m
A02B-0303-K822 straight cable 1.5m
Ethernet Cable for Connector Panel
A02B-0303-K823 straight cable 5m
2. Component
・Ethernet Connector Panel
・Ethernet Cable for Connector Panel
CD38
Connect to CNC
CD51
Connector fo
Ethernet Cable fo
Connector Panel
FG
Connect to cabinet
(Crimp terminal M4)
CD51
Connect to the
Ethernet
Connector Panel
Connect to the
PC or HUB
CPD20
Connector for DC24V
power supply