FS16i/18i Additional Manual Page 2

Additional Manual
FANUCSeries16i/18I
SPECIFICATIONS FOR POSITION
LOOP CONTROL FOR CONSTANT
VELOCITY
A - 63542- E
NO.
TITLE
NEWLY 1998.5.26 01
1. General
In this function, the constant velocity command in the PMC axis control can be
moved by position loop control, so that Cs axis control is possible. Therefore
this function do not output velocity data for amplifier, but do output that
command pulse correspond to velocity data for servo position control, so this
function is moved PMC axis in constant velocity.
Parameter(NO. 8005#4) decides whether the constant velocity command of
PMC axis control is performed by position loop control or by velocity loop control.
ACC/DEC is done by using the parameter(NO.8028) .
In the case of position control of constant velocity command, override is effective.
The amount of travel per one revolution of the motor is set in parameter NO.8040 at
least command increment unit and by using this parameter, velocity command is
converted into position command(least command increment unit).
In the case of P is output pulse(least command increment unit), the following
calculation is.
(velocity command(rpm)) x (parameter 8040) x (ITP time) x (override)
P = -------------------------------------------------------------------------------------------
60 x 1000 x 100
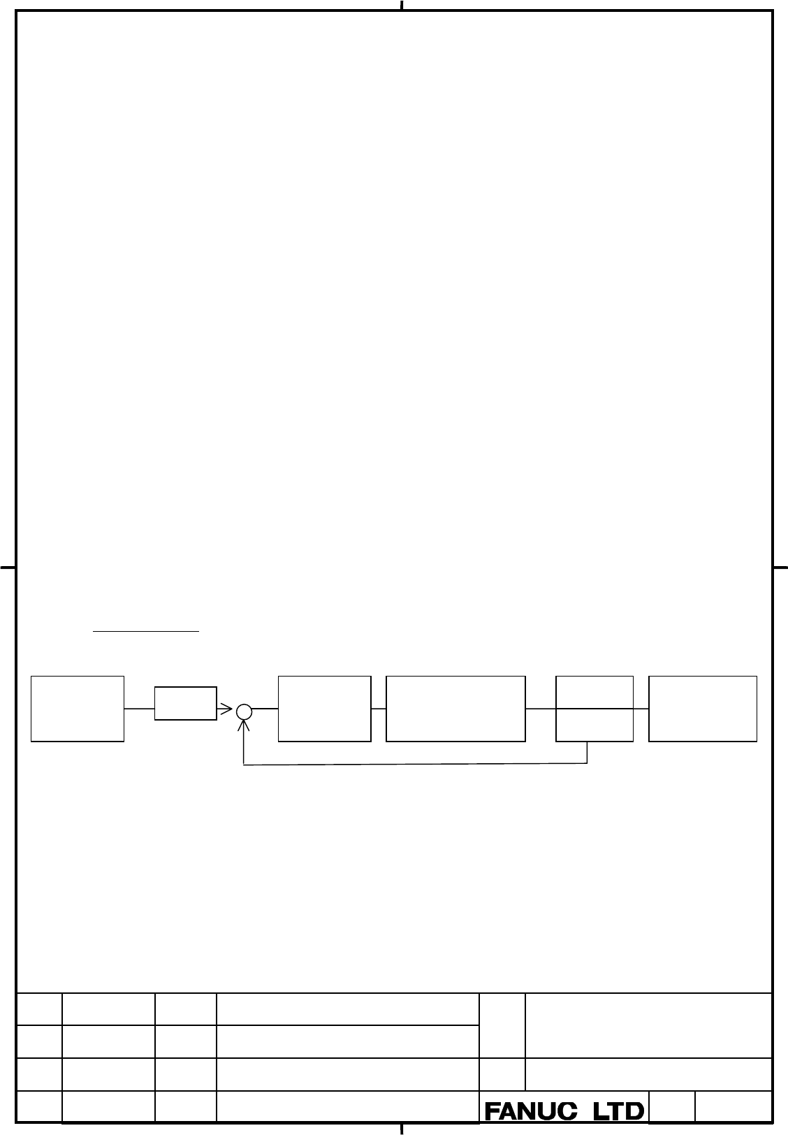
Block diagram
+
-
Position
control
Spindle o
r
servo
amplifier
Motor
Detector
X CMR
Spindle or
Servo axis
Command
pulse
EDT. DATE DESIG. DESCRIPTION PAGE /003

Contents Summary of FS16i/18i Additional Manual

  • Page 1FANUC Series 16 i / 18i SPECIFICATIONS FOR POSITION LOOP CONTROL FOR CONSTANT VELOCITY COMMAND IN PMC AXIS CONTROL Contents 1 General ------------------------------2 2 Parameters ------------------------3 This specifications may be modified for improvement without notice. FANUCSeries16i/18I SPECIFIC
  • Page 21. General In this function, the constant velocity command in the PMC axis control can be moved by position loop control, so that Cs axis control is possible. Therefore this function do not output velocity data for amplifier, but do output that command pulse correspond to velocity data for servo pos
  • Page 32.Parameters 7 6 5 4 3 2 1 0 8005 PMCPOS Parameter input Data type : Bit PMCPOS The constant velocity command in the PMC axis control is 0 : velocity control. 1 : position control. In the case of position loop control for constant velocity 8040 command in PMC axis control, the amount of travel per o