Connection of Ethernet Connector Panel Additional Manual Page 7

Additional Manual
EDIT.
SHEET
DRAW. NO.
CUST.
TITLE
6
/
6
DESCRIPTIONDESIG.DATE
Connection of Ethernet Connecto
r
Panel
A
-65563EN/01
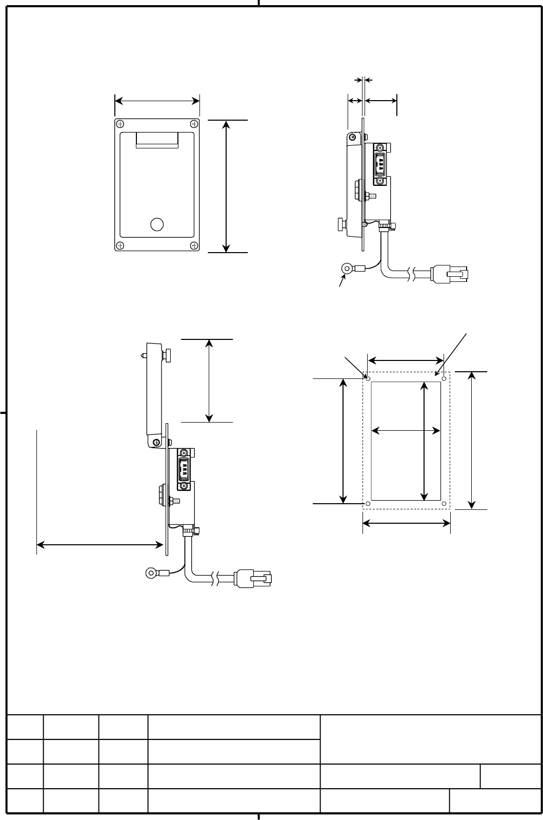
5. Dimensions of Ethernet Cable for Connector Panel
110 mm
80 mm
125 mm
Space for the
connector panel
cover and cable
80 mm
Space for the connecto
r
panel cover
70 mm
4-M
3
115 mm
64 mm
109 mm
Panel cut drawing
Crimp terminal M4
35 mm
14 mm
2 mm
123 mm
78 mm
Dashed line: Area for packing attachment
Weight: 0.4kg
(Unit: mm)

Contents Summary of Connection of Ethernet Connector Panel Additional Manual

  • Page 1TECHNICAL REPORT (MANUAL) NO.TMN 05/121E Date: Dec. 19, 2005 General Manager of CNC Laboratory Connection of Ethernet Connector Panel 1. Communicate this report to: ○ Your information ○ GE Fanuc-N, GE Fanuc-E FANUC Robotics MILACRON ○ Machine tool builder Sales agency End user 2. Summary for Sales D
  • Page 2Ethernet Connector Panel Ethernet Connector Panel enables user to connect/disconnect Ethernet cable at the front panel of the cabinet with ease. 1. Specification Name Specification A02B-0303-C194 with 1m cable Ethernet Connector Panel A02B-0303-C195 with 2m cable A02B-0303-C196 with 5m cable A02B-03
  • Page 3CAUTION Before attaching or removing cables, power off the CNC main unit, and confirm that the power is off. Ask the respective manufacturers for explanations about how to build a network and about conditions for using units (such as a media converter, hub, transceiver, and cable) other than the CNC
  • Page 43. Connection of Ethernet Connector Panel CNC Ethernet Connector Panel CD38x CD51 CD38 1 TPTX+ 1 TPTX+ Attached cable 2 TPTX- 2 TPTX- 3 TPRX+ 3 (0V) 4 4 (+24V) 5 5 TPRX+ 6 TPRX- 6 TPRX- 7 7 (+24V) 8 8 (0V) CPD20 1 (+24V) 24V input (*1) 2 (0V) 3 FG Cable connection CD38 (RJ-45) CD51 TPTX+ 1 1 TPTX+ T
  • Page 54. Connection of Ethernet Cable for Connector Panel Ethernet Connector Panel CD51 Peripherals side 1 TPTX+ connector CD51 2 TPTX- PC or HUB (line 3 (0V) concentrator) 4 (+24V) 5 TPRX+ 6 TPRX- 7 (+24V) 8 (0V) Cable connection [Cross cable] Peripherals CD51 side connector 1 3 TPTX+ TPRX+ TPTX- 2 6 TPR
  • Page 6・Recommended cable side connector (note1) CD51 side: JB5DT08YN121 (Japan Aviation Electronics) Peripheral side: TMP21P-88P (Hirose Electric) ・Recommended cable conductor : A66L-0001-0453 ・Maximum cable length: 40m (in case of recommended cable) Do not make the cable longer than necessary. ・Recommend
  • Page 75. Dimensions of Ethernet Cable for Connector Panel 2 mm 80 mm 14 mm 35 mm 125 mm Crimp terminal M4 Space for the connector Dashed line: Area for packing attachment panel cover 4-M 70 mm 3 80 mm 115 mm 64 mm 123 mm 109 mm Space for the connector panel cover and cable 78 mm 110 mm Panel cut drawing W