
PROGRAMMING
1. GENERAL
B–63514EN/01
26
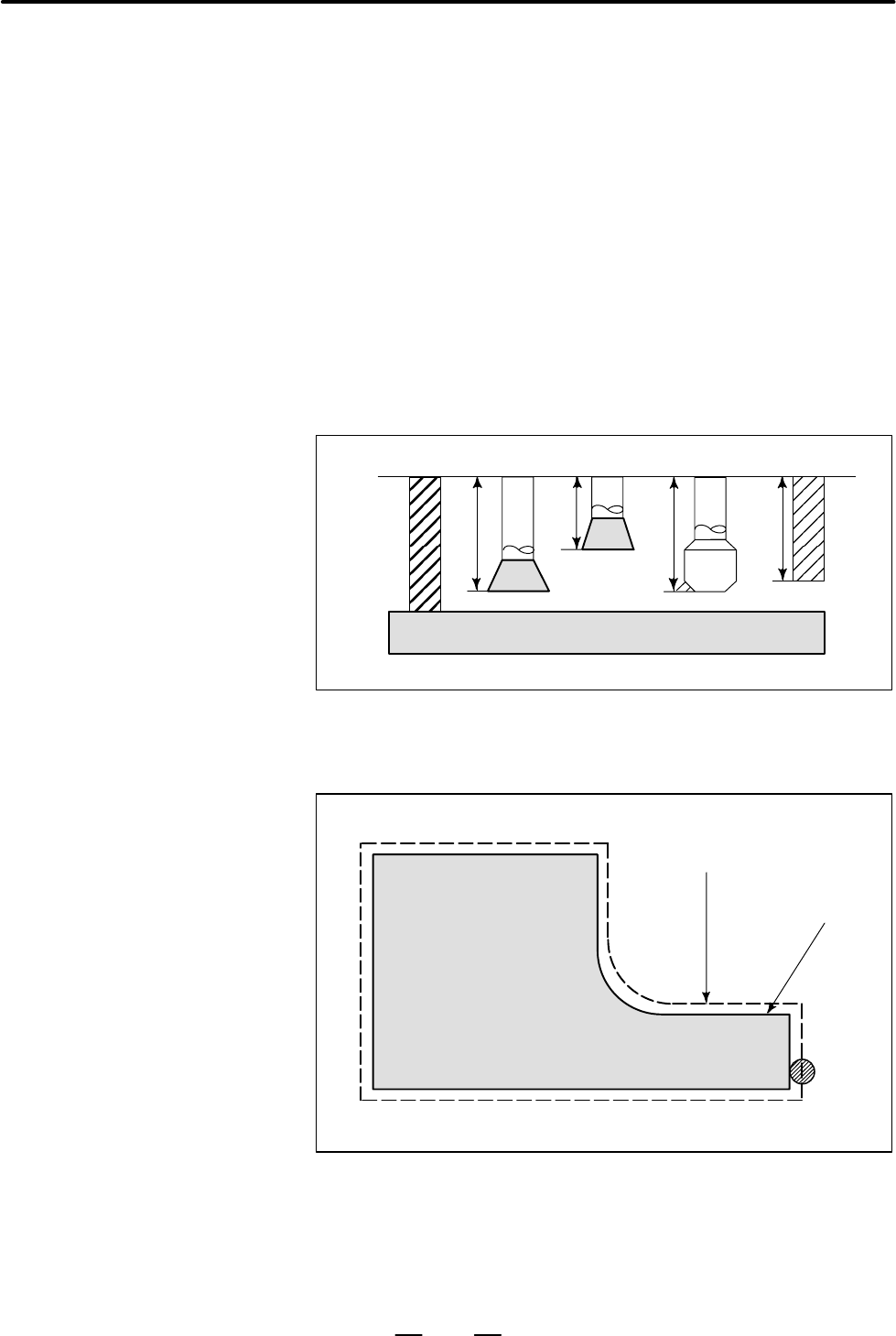
Usually, several tools are used for machining one workpiece. The tools
have different tool length. It is very troublesome to change the program
in accordance with the tools.
Therefore, the length of each tool used should be measured in advance.
By setting the difference between the length of the standard tool and the
length of each tool in the CNC (data display and setting : see III–11),
machining can be performed without altering the program even when the
tool is changed. This function is called tool length compensation.
H1
H2
H3 H4
Standard
tool
Workpiece
Because a cutter has a radius, the center of the cutter path goes around the
workpiece with the cutter radius deviated.
Workpiece
Cutter path using cutter
compensation
Machined part
figure
Cutter
If radius of cutters are stored in the CNC (Data Display and Setting : see
III–11), the tool can be moved by cutter radius apart from the machining
part figure. This function is called cutter compensation (See III–14.4,
14.5).
1.8
TOOL FIGURE AND
TOOL MOTION BY
PROGRAM
Explanations
D Machining using the end
of cutter – Tool length
compensation function
(See II–14.1)
D Machining using the side
of cutter – Cutter
compensation function
(See II–14.4,14.5)