SERIES 16/18/160/180 i PA Descriptions Page 272

Descriptions
B–63122EN/01
G. EXTERNAL DIMENSIONS OF EACH UNIT
APPENDIX
265
Fig. 7
EXTERNAL DIMENSIONS OF TAP
65
5
5
25 25
50
5
32.5
35
100
120
12 3
Fig. 8
EXTERNAL DIMENSIONS OF TERMINAL RESISTANCE UNIT
16.039.3
47.0

Contents Summary of SERIES 16/18/160/180 i PA Descriptions

  • Page 1GE Fanuc Automation Computer Numerical Control Products Series 16i / 18i / 160i / 180i – Model PA Descriptions Manual B-63122EN/01 October 1997
  • Page 2GFL-001 Warnings, Cautions, and Notes as Used in this Publication Warning Warning notices are used in this publication to emphasize that hazardous voltages, currents, temperatures, or other conditions that could cause personal injury exist in this equipment or may be associated with its use. In situ
  • Page 3B–63122EN/01 Table of Contents DEFINITION OF WARNING, CAUTION, AND NOTE I. GENERAL 1. GENERAL . . . . . . . . . . . . . . . . . . . . . . . . . . . . . . . . . . . . . . . . . . . . . . . . . . . . . . . . . . . . . . . . . . 3 2. LIST OF SPECIFICATIONS . . . . . . . . . . . . . . . . . . . . . . .
  • Page 4TABLE OF CONTENTS B–63122EN/01 4.3.5 Jog Override . . . . . . . . . . . . . . . . . . . . . . . . . . . . . . . . . . . . . . . . . . . . . . . . . . . . . . . . . . . . . . . . . 29 4.3.6 F1–digit (Programmable Rapid Traverse Override) . . . . . . . . . . . . . . . . . . . . . . . . . . . . . . . .
  • Page 5B–63122EN/01 TABLE OF CONTENTS 8. PRESS FUNCTIONS . . . . . . . . . . . . . . . . . . . . . . . . . . . . . . . . . . . . . . . . . . . . . . . . . . . . . . . . 53 8.1 ONE–CYCLE PRESS . . . . . . . . . . . . . . . . . . . . . . . . . . . . . . . . . . . . . . . . . . . . . . . . . . . . . . . . . .
  • Page 6TABLE OF CONTENTS B–63122EN/01 12.11 CONTROL–IN/CONTROL–OUT . . . . . . . . . . . . . . . . . . . . . . . . . . . . . . . . . . . . . . . . . . . . . . . . . . . . 77 12.12 OPTIONAL BLOCK SKIP . . . . . . . . . . . . . . . . . . . . . . . . . . . . . . . . . . . . . . . . . . . . . . . . . . . . . .
  • Page 7B–63122EN/01 TABLE OF CONTENTS 15.4 BACKLASH COMPENSATION SPECIFIC TO RAPID TRAVERSE AND CUTTING FEED . . . 105 15.5 PROGRAMMABLE PARAMETER ENTRY (G10, G11) . . . . . . . . . . . . . . . . . . . . . . . . . . . . . . . . . 106 15.6 C–AXIS BACKLASH COMPENSATION FOR INDIVIDUAL INDEXES (OPTION) . . . .
  • Page 8TABLE OF CONTENTS B–63122EN/01 22. AUTOMATIC OPERATION . . . . . . . . . . . . . . . . . . . . . . . . . . . . . . . . . . . . . . . . . . . . . . . . . 139 22.1 OPERATION MODE . . . . . . . . . . . . . . . . . . . . . . . . . . . . . . . . . . . . . . . . . . . . . . . . . . . . . . . . . . . . . .
  • Page 9B–63122EN/01 TABLE OF CONTENTS 25. DISPLAYING AND SETTING DATA . . . . . . . . . . . . . . . . . . . . . . . . . . . . . . . . . . . . . . . . . 160 25.1 DISPLAY . . . . . . . . . . . . . . . . . . . . . . . . . . . . . . . . . . . . . . . . . . . . . . . . . . . . . . . . . . . . . . . . . . . . .
  • Page 10TABLE OF CONTENTS B–63122EN/01 28.3 EXTERNAL PROGRAM INPUT . . . . . . . . . . . . . . . . . . . . . . . . . . . . . . . . . . . . . . . . . . . . . . . . . . . . 189 28.4 DATA INPUT/OUTPUT USING A MEMORY CARD . . . . . . . . . . . . . . . . . . . . . . . . . . . . . . . . . . . 189 28.5 DNC1 CONTRO
  • Page 11B–63122EN/01 TABLE OF CONTENTS 31. EXTERNAL DATA INPUT . . . . . . . . . . . . . . . . . . . . . . . . . . . . . . . . . . . . . . . . . . . . . . . . . . 210 31.1 EXTERNAL TOOL COMPENSATION . . . . . . . . . . . . . . . . . . . . . . . . . . . . . . . . . . . . . . . . . . . . . . . 211 31.2 EXTERN
  • Page 12I. GENERA
  • Page 13B–63122EN/01 GENERAL 1. GENERAL 1 GENERAL The FANUC Series 16i, 160i, 18i, 180i, 21i, and 210i are super–compact ultra–thin CNC models with built–in liquid crystal displays. Each CNC unit is only 60 mm deep. This compactness was achieved by accommodating a small CNC printed–circuit board developed b
  • Page 141. GENERAL GENERAL B–63122EN/01 Manuals related to The table below lists manuals related to the FANUC Series 16i/160i–PA, Series 16i/160i–PA, 18i/180i–PA. In the table, this manual is marked with an asterisk (*). 18i/180i–PA Manuals Related to the Series 16i/160i–PA, 18i/180i–PA Specification Manual
  • Page 15B–63122EN/01 GENERAL 2. LIST OF SPECIFICATIONS 2 LIST OF SPECIFICATIONS  : Standard  : Standard option  : Option * : Function included in another option. NOTE *1 : only for 16i/18i *2 : only for 160i/180i Some combinations of these options are restricted. Controlled axis 16i–PA 18i–PA Item Specif
  • Page 162. LIST OF SPECIFICATIONS GENERAL B–63122EN/01 Controlled axis 16i–PA 18i–PA Item Specifications 160i–PA 180i–PA Stored stroke check 1   Stroke limit external setting   Stored stroke check 2   Stroke limit check before move Only for G00   Safety zone check   Clamp zone avoidance function 
  • Page 17B–63122EN/01 GENERAL 2. LIST OF SPECIFICATIONS Interpolation function 16i–PA 18i–PA Item Specifications 160i–PA 180i–PA Positioning G00 (Linear interpolation type positioning is   possible) Exact stop mode G61   Exact stop G09   Linear interpolation G01   Circular interpolation   Dwell Dwe
  • Page 182. LIST OF SPECIFICATIONS GENERAL B–63122EN/01 Press function 16i–PA 18i–PA Item Specifications 160i–PA 180i–PA High–speed press control   1 cycle press   Manual press 1 cycle/continuity   Positioning & press off G70   Setting for press start signal   Press start lock   Press start wait
  • Page 19B–63122EN/01 GENERAL 2. LIST OF SPECIFICATIONS Program input 16i–PA 18i–PA Item Specifications 160i–PA 180i–PA Bending compensation G38/G39   Programmable data input G10   Sub program call 4 folds nested   Custom macro B   Addition of custom macro common variables #100 to #199, #500 to #999
  • Page 202. LIST OF SPECIFICATIONS GENERAL B–63122EN/01 Editing operation 16i–PA 18i–PA Item Specifications 160i–PA 180i–PA Part program storage length 20m Ċ  40m   80m   160m   320m   640m   1280m   2560m  Ċ 5120m  Ċ Number of registrable programs 63   125   200   400   1000   Part
  • Page 21B–63122EN/01 GENERAL 2. LIST OF SPECIFICATIONS Setting and display 16i–PA 18i–PA Item Specifications 160i–PA 180i–PA Periodic maintenance screen *1   Maintenance information screen *1   Software operator’s panel   Software operator’s panel general purpose switch   Multi–language display Engl
  • Page 222. LIST OF SPECIFICATIONS GENERAL B–63122EN/01 Others 16i–PA 18i–PA Item Specifications 160i–PA 180i–PA Status output signal NC ready, servo ready, automatic operation,re-   set,alarm, etc. Display incorporated in the control unit 7.2″ monochrome LCD *1   9.5″ monochrome LCD *1   8.4″ color LC
  • Page 23II. NC FUNCTIO
  • Page 24B–63122EN/01 NC FUNCTION 1. CONTROLLED AXES 1 CONTROLLED AXES 15
  • Page 251. CONTROLLED AXES NC FUNCTION B–63122EN/01 1.1 8 axes 16i/160i–PA : 8 axes NUMBER OF THE 18i/180i–PA : 6 axes ALL CONTROLLED The machine controlled axes include Cs axis and PMC controlled axes. AXES 1.2 MACHINE CONTROLLED AXES 1.2.1 3 axes (X axis, Y axis, turret axis (T axis)) Number of Basic Cont
  • Page 26B–63122EN/01 NC FUNCTION 1. CONTROLLED AXES 1.4 There are two increment systems as shown in the tables below. One of the increment systems can be selected using a parameter. INCREMENT SYSTEM Table 1.4 (a) Least input Least command Abbreviation increment increment 0.01 mm 0.005 mm Metric input in ut
  • Page 271. CONTROLLED AXES NC FUNCTION B–63122EN/01 1.4.1 The following least input increments can be set using a parameter: Input Unit (10 Times) Increment system Least input increment IS–B 0.01 mm, 0.01 deg, or 0.001 inch CAUTION When incerement system is IS–A, Input unit 10 time multibly can not be used.
  • Page 28B–63122EN/01 NC FUNCTION 2. PREPARATORY FUNCTIONS 2 PREPARATORY FUNCTIONS The following G codes are provided. The G codes are classified into two: A and B. One of the G code types can be selected using a parameter. In this manual, G code system B is assumed. G code list (1/2) System A System B Group
  • Page 292. PREPARATORY FUNCTIONS NC FUNCTION B–63122EN/01 G code list (2/2) System A System B Group Meaning G50 G34 Scaling on 11 G51 G35 Scaling off G52 G93 0 Local coordinate system setting G53 G53 00 Machine coordinate system selection G54 G54 Workpiece coordinates system 1 selection G55 G55 Workpiece
  • Page 30B–63122EN/01 NC FUNCTION 3. INTERPOLATION FUNCTIONS 3 INTERPOLATION FUNCTIONS 21
  • Page 313. INTERPOLATION FUNCTIONS NC FUNCTION B–63122EN/01 3.1 Positioning is done with each axis separately (Non linear interpolation type positioning). POSITIONING (G00) Any of the following tool paths can be selected using parameters.  Non linear interpolation positioning Each axis is independently pos
  • Page 32B–63122EN/01 NC FUNCTION 3. INTERPOLATION FUNCTIONS 3.2 Linear interpolation is done with tangential direction feed rate specified by the F code. LINEAR INTERPOLATION X axis (G01) End point (200, 150) (Program example) G01 G90 X200. Y150. F200 ; Start point Y axis Format G01 _ F_ ; F : Feedrate 23
  • Page 333. INTERPOLATION FUNCTIONS NC FUNCTION B–63122EN/01 3.3 Circular interpolation of optional angle from 0° to 360 ° can be specified. G02: Clockwise (CW) circular interpolation CIRCULAR G03: Counterclockwise (CCW) circular interpolation INTERPOLATION (G02, G03) Yp G03 G02 Xp G17 Feed rate of the tange
  • Page 34B–63122EN/01 NC FUNCTION 3. INTERPOLATION FUNCTIONS 3.4 Helical interpolation performs circular interpolation of a maximum of two axes, synchronizing with other optional two axes circular HELICAL interpolation. Thread cutting of large radius threads or machining of solid INTERPOLATION cams are possi
  • Page 354. FEED FUNCTIONS NC FUNCTION B–63122EN/01 4 FEED FUNCTIONS 26
  • Page 36B–63122EN/01 NC FUNCTION 4. FEED FUNCTIONS 4.1 Positioning of each axis is done in rapid motion by the positioning command (G00). RAPID TRAVERSE There is no need to program rapid traverse rate, because the rates are set in the parameter (per axis). Least command increment Rapid traverse rate range 0
  • Page 374. FEED FUNCTIONS NC FUNCTION B–63122EN/01 4.2 Feed rates of linear interpolation (G01), and circular interpolation (G02, G03) are commanded with numbers after the F code. CUTTING FEED RATE 4.2.1 In cutting feed, it is controlled so that speed of the tangential direction is Tangential Speed always t
  • Page 38B–63122EN/01 NC FUNCTION 4. FEED FUNCTIONS 4.3 OVERRIDE 4.3.1 The per minute feed can be overrided by: Feed Rate Override 0 to 254% (per every 1%). 4.3.2 All cutting feed rate can be overrided by: Second Feed Rate 0 to 254% (per every 1%) A second override can be performed on feed rats once override
  • Page 394. FEED FUNCTIONS NC FUNCTION B–63122EN/01 4.3.7 It is possible to override the X–/Y–axis rapid traverse linear Rapid Traverse Time acceleration/deceleration time constant in a range from 1% to 100% in 1% steps. This function obtains an optimum time constant by overriding the Constant Override linea
  • Page 40B–63122EN/01 NC FUNCTION 4. FEED FUNCTIONS 4.4 Acceleration and deceleration is performed when starting and ending movement, resulting in smooth start and stop. AUTOMATIC Automatic acceleration/deceleration is also performed when feed rate ACCELERATION/ changes, so change in speed is also smoothly d
  • Page 414. FEED FUNCTIONS NC FUNCTION B–63122EN/01 4.4.1 For rapid traverse, the rapid traverse feedrates, time constants, and servo Switching Rapid loop gains can be switched according to the positioning distance set up by a parameter for each axis. Use of this function can improve positioning Traverse Fee
  • Page 42B–63122EN/01 NC FUNCTION 4. FEED FUNCTIONS 4.5 The function for rapid traverse bell–shaped acceleration/deceleration increases or decreases the rapid traverse feedrate smoothly. RAPID TRAVERSE This reduces the shock to the machine system due to changing BELL–SHAPED acceleration when the feedrate is
  • Page 434. FEED FUNCTIONS NC FUNCTION B–63122EN/01 4.6 LINEAR Speed ACCELERATION/ DECELERATION AFTER CUTTING FEED INTERPOLATION Time TC TC In the linear acceleration/deceleration, the delay for the command caused by the acceleration/ deceleration becomes 1/2 compared with that in exponential acceleration/de
  • Page 44B–63122EN/01 NC FUNCTION 4. FEED FUNCTIONS 4.7 BELL–SHAPE Speed ACCELERATION/ DECELERATION B F AFTER CUTTING FEED INTERPOLATION F/2 A 0 TC/2 Time TC TC It is possible to apply quadratic–curve acceleration/deceleration to cutting feed as shown above. This type of acceleration/deceleration is called b
  • Page 454. FEED FUNCTIONS NC FUNCTION B–63122EN/01 4.8 In response to the cutting feed command, the feedrate before interpolation, the command feedrate can be directly accelerated/ LINEAR decelerated. This enables a machined shape error caused by the delay of ACCELERATION/ acceleration/deceleration to be el
  • Page 46B–63122EN/01 NC FUNCTION 4. FEED FUNCTIONS 4.9 Move command in blocks commanded with G09 decelerates at the end point, and in–position check is performed. G09 command is not EXACT STOP (G09) necessary for deceleration at the end point for positioning (G00) and in–position check is also done automati
  • Page 475. REFERENCE POSITION NC FUNCTION B–63122EN/01 5 REFERENCE POSITION 38
  • Page 48B–63122EN/01 NC FUNCTION 5. REFERENCE POSITION 5.1 MANUAL REFERENCE POSITION RETURN 5.1.1 Positioning to the reference position can be done by manual operation. Manual Reference With jogging mode (J), manual reference position return (ZRN) signals, and signal for selecting manual reference position
  • Page 495. REFERENCE POSITION NC FUNCTION B–63122EN/01 5.2 AUTOMATIC REFERENCE POSITION RETURN  Return to reference With the G28 command, the commanded axis is positioned to the position (G28) reference position. After positioning, the reference position return end lamp lights. If G28 was commanded when re
  • Page 50B–63122EN/01 NC FUNCTION 5. REFERENCE POSITION 5.3 It is possible to return the workpiece to the floating reference position by commanding the G30.1. FLOATING The floating reference position is located on the machine and can be a REFERENCE reference position of some sort of machine operation. It is
  • Page 515. REFERENCE POSITION NC FUNCTION B–63122EN/01 5.4 In a grid–based reference position return, setting the distance over which the reference position is to shift in a parameter makes it possible to shift REFERENCE POINT the reference position without moving a deceleration dog. This function SHIFT can
  • Page 52B–63122EN/01 NC FUNCTION 6. COORDINATE SYSTEMS 6 COORDINATE SYSTEMS By teaching the CNC the position the tool is to arrive, the CNC moves the tool to that position. The position is specified using coordinates on a certain coordinate system. There are three types of coordinate systems.  Machine coor
  • Page 536. COORDINATE SYSTEMS NC FUNCTION B–63122EN/01 6.1 Machine coordinate system is a coordinate system set with a zero point proper to the machine system. MACHINE A coordinate system in which the reference point becomes the COORDINATE parameter-preset coordinate value when manual reference point return
  • Page 54B–63122EN/01 NC FUNCTION 6. COORDINATE SYSTEMS 6.2 A coordinate system in which the zero point is set to a fixed point on the workpiece, to make programming simple. WORKPIECE A workpiece coordinate system may be set by using one of the following COORDINATE methods: SYSTEM (1) Using G92 (2) Using G54
  • Page 556. COORDINATE SYSTEMS NC FUNCTION B–63122EN/01 6.2.2 When manual reference position return is performed, a workpiece Automatic Coordinate coordinate system can be set automatically so that the current tool position at the reference position becomes a desired position which is set System Setting usin
  • Page 56B–63122EN/01 NC FUNCTION 6. COORDINATE SYSTEMS 6.3 With G52 commanded, the local coordinate system with the commanded position as zero point can be set. Once the local coordinate system is set, LOCAL COORDINATE values specified in subsequent move commands are regarded as SYSTEM SYSTEM coordinate val
  • Page 576. COORDINATE SYSTEMS NC FUNCTION B–63122EN/01 6.4 Six workpiece coordinate systems can be set. But, when that is still not enough, or when workpiece origin offset value must be set by tape or WORKPIECE ORIGIN changed, this G10 command is used to change workpiece origin offsets. OFFSET VALUE When G1
  • Page 58B–63122EN/01 NC FUNCTION 6. COORDINATE SYSTEMS 6.5 A plane subject to circular interpolation, cutter compensation, coordinate system rotation, or drilling can be selected by specifying a G code. PLANE SELECTION (G17, G18, G19) G code Selected plane Xp Yp Zp G17 Xp–Yp plane X axis or an Y axis or an
  • Page 597. COORDINATE VALUE AND DIMENSION NC FUNCTION B–63122EN/01 7 COORDINATE VALUE AND DIMENSION 50
  • Page 607. COORDINATE VALUE AND B–63122EN/01 NC FUNCTION DIMENSION 7.1 There are two ways to command travels to the axes; the absolute command, and the incremental command. In the absolute command, ABSOLUTE AND coordinate value of the end point is programmed; in the incremental INCREMENTAL command, move dis
  • Page 617. COORDINATE VALUE AND DIMENSION NC FUNCTION B–63122EN/01 7.2 Conversion of inch and metric input can be commanded by the G code command. INCH/METRIC G20 : Inch input CONVERSION G21 : Metric input (G20, G21) Whether the output is in inch system or metric system is parameter-set when the machine is
  • Page 62B–63122EN/01 NC FUNCTION 8. PRESS FUNCTIONS 8 PRESS FUNCTIONS 53
  • Page 638. PRESS FUNCTIONS NC FUNCTION B–63122EN/01 8.1 In blocks which perform positioning (G00) along the X- or Y-axis in rapid traverse mode, a press start signal is sent to the press after positioning is ONE–CYCLE PRESS completed, thus enabling punching. Note however that no press start signal is output
  • Page 64B–63122EN/01 NC FUNCTION 8. PRESS FUNCTIONS 8.2 The term nibbling refers to repeated punching without bringing the press to a halt. A continuous-press-in-process signal is output in nibbling CONTINUOUS PRESS blocks. (NIBBLING) 8.2.1 (1) The following command specifies circular nibbling: Circular Nib
  • Page 658. PRESS FUNCTIONS NC FUNCTION B–63122EN/01 8.2.2 Nibbling can be performed in a block between an M-code for nibbling Nibbling Mode (M12) and an M-code for nibbling cancel (M13). These M-codes are specified by parameters. (M–code) Linear nibbling can be done by commanding G01 in the nibbling mode, w
  • Page 66B–63122EN/01 NC FUNCTION 8. PRESS FUNCTIONS Q: Pitch N200G00G90X x1 Y y1 ; N210M12; N220G41X x2 Y y2 T02D02 ; N230G01X x 3 Y y 3 Q ; N240X x 4 Y y4 ; N250G03X x 5 Y y 5 I J ; N260G01X x 6 Y y 6 ; N270X x 7 Y y7 ; N280M13; N290G40G00X x8 Y y8 T03 ; N240 N260 (x3, y3) (x4, y4) (x5, y5) (x6, y6) N230 N
  • Page 678. PRESS FUNCTIONS NC FUNCTION B–63122EN/01 8.3 Pressing a button on the press machine can output a press-in-progress signal. It is possible to specify whether punching is to be performed on MANUAL PRESS one cycle only or to be continued while the button is pressed. 8.4 G70 specifies rapid traverse
  • Page 68B–63122EN/01 NC FUNCTION 9. SPINDLE FUNCTIONS 9 SPINDLE FUNCTIONS 59
  • Page 699. SPINDLE FUNCTIONS NC FUNCTION B–63122EN/01 9.1 The spindle speed is specified with a 5-digit numeric value following address S. The 5-digit numeric value is output to the PMC as a 32-bit S CODE OUTPUT binary code. The code is maintained until another S is specified. The maximum number of input di
  • Page 70B–63122EN/01 NC FUNCTION 10. TOOL FUNCTIONS 10 TOOL FUNCTIONS 61
  • Page 7110. TOOL FUNCTIONS NC FUNCTION B–63122EN/01 10.1 Selection of tools can be done by commanding tool numbers with an 8–digit numeral after address T. The 8–bit numeral is output in a 32–bit T CODE OUTPUT binary code. This code is kept till the next T code is commanded. Maximum input digits are set by
  • Page 72B–63122EN/01 NC FUNCTION 10. TOOL FUNCTIONS 10.4 In general, the tool holder of a punch holds one tool (die). To select a tool the tool holder is first moved to the position at which the tool is changed MULTIPLE TOOL using the T command (cartridge indexing). Then, at that position, the tool CONTROL
  • Page 7310. TOOL FUNCTIONS NC FUNCTION B–63122EN/01 10.4.2 The tools of a multiple–tool system are selected by turning the C axis. Relationship Between A tool is selected by placing it at the tool reference position. This position is parallel to the Y axis and on the center line of the tool holder of a the
  • Page 74B–63122EN/01 NC FUNCTION 10. TOOL FUNCTIONS 10.4.3 When a multiple–tool system is used, the centers of the dies in the Tool Compensation multiple–tool system are not at the center of the tool holder. Therefore, tool compensation is necessary. Tool compensation for tools in a multiple–tool system wor
  • Page 7510. TOOL FUNCTIONS NC FUNCTION B–63122EN/01 10.5 Set the maximum number of punches for each tool, on the CRT screen. When the number of executed punches for the selected tool exceeds the TOOL LIFE maximum number of punches for that tool, the tool life reached signal MANAGEMENT PTLCH is output. This
  • Page 76B–63122EN/01 NC FUNCTION 11. MISCELLANEOUS FUNCTIONS 11 MISCELLANEOUS FUNCTIONS 67
  • Page 7711. MISCELLANEOUS FUNCTIONS NC FUNCTION B–63122EN/01 11.1 When an 8–digit number after address M is commanded, a 32–bit binary code is output. Maximum input digits are specified with parameters for MISCELLANEOUS this code. This function is used for on/off at the machine side. A single FUNCTIONS M co
  • Page 78B–63122EN/01 NC FUNCTION 11. MISCELLANEOUS FUNCTIONS 11.2 Up to three M codes can be simultaneously specified in one block. As these M codes are simultaneously sent to PMC side, the machining 1–BLOCK PLURAL cycle time compared with the conventional 1–block single M command M COMMAND is reduced. Exam
  • Page 7911. MISCELLANEOUS FUNCTIONS NC FUNCTION B–63122EN/01 11.4 The communication of execution command signal (strobe signal) and completion signal is the M/S/T/B function were simplified to realize a HIGH–SPEED M/S/T/B high–speed execution of M/S/T/B function. INTERFACE The time required for cutting can
  • Page 80B–63122EN/01 NC FUNCTION 11. MISCELLANEOUS FUNCTIONS NOTE 1 Either the conventional system or the high–speed system can be selected for communication of strobe signal and completion signal. 2 In the conventional system, only one completion signal is available for all functions of M/S/T/B. However, i
  • Page 8112. PROGRAM CONFIGURATION NC FUNCTION B–63122EN/01 12 PROGRAM CONFIGURATION 72
  • Page 82B–63122EN/01 NC FUNCTION 12. PROGRAM CONFIGURATION 12.1 A program number is given to each program to distinguish a program from other programs. The program number is given at the head of each PROGRAM NUMBER program, with a 4–digit number after the address 0. Program number of the program currently u
  • Page 8312. PROGRAM CONFIGURATION NC FUNCTION B–63122EN/01 12.4 When there are fixed sequences or frequently repeated patterns in a program, programming can be simplified by entering these pattern as sub SUB PROGRAM programs to the memory. Sub program is called by M98, and M99 commands return from the sub p
  • Page 84B–63122EN/01 NC FUNCTION 12. PROGRAM CONFIGURATION 12.5 When memory is used, a program cataloged in the floppy cassette can be called and executed as a sub program. EXTERNAL MEMORY A sub program is called from the floppy cassette when the program using AND SUB PROGRAM the memory executes the followi
  • Page 8512. PROGRAM CONFIGURATION NC FUNCTION B–63122EN/01 12.8 The following table shows the basic addresses and the range of values to be specified. The range, however, is that of CNC. Note that the range of BASIC ADDRESSES the machine is different from this. AND COMMAND VALUE RANGE  Basic Addresses and
  • Page 86B–63122EN/01 NC FUNCTION 12. PROGRAM CONFIGURATION 12.9 The variable block word address format with decimal point is adopted as tape format. See List of Tape Format in Appendix C for details on tape TAPE FORMAT formats. 12.10 Label skip function is valid in the following cases, and “LSK” is displaye
  • Page 8713. FUNCTION TO SIMPLIFY PROGRAMMING NC FUNCTION B–63122EN/01 13 FUNCTION TO SIMPLIFY PROGRAMMING 78
  • Page 8813. FUNCTION TO SIMPLIFY B–63122EN/01 NC FUNCTION PROGRAMMING 13.1 It is possible to punch out at two or more positions according to a certain form by the command of one block. Whenever it is positioned at each PATTERN FUNCTION position in the rapid traverse rate, the press start signal is outputted
  • Page 8913. FUNCTION TO SIMPLIFY PROGRAMMING NC FUNCTION B–63122EN/01 13.1.3 Arc (G77) Format G77I r J θ P ∆θ K n ; #n r ∆θ #I θ 13.1.4 Grid (G78, G79) Format G78I dx P nx J dy K ny ; G79I dx P nx J dy K ny ; G78 specifies punching from X–axis direction. G79 specifies punching from X–axis direction. #ny dy
  • Page 9013. FUNCTION TO SIMPLIFY B–63122EN/01 NC FUNCTION PROGRAMMING 13.1.5 Share Proof (G86) Format G86I  J q P W1 Q W2 ; W1  θ W2 13.1.6 Square (G87) Format G87I  x J  y P W1 Q W2 ; W1 W2 y x 81
  • Page 9113. FUNCTION TO SIMPLIFY PROGRAMMING NC FUNCTION B–63122EN/01 13.1.7 Radius (G88) Format G88I  x J θ K ∆ θ P d Q p ; d p r ∆θ θ 13.1.8 Cut at Angle (G89) Format G89I  J θ P d Q p ; d p  θ 82
  • Page 9213. FUNCTION TO SIMPLIFY B–63122EN/01 NC FUNCTION PROGRAMMING 13.2 BASE POINT Program 1 G90X100Y100 ; COMMAND (G72) G70X200Y200 ; G26I50JOK4 ; Program 2 G90X100Y100 ; G70X200Y200 ; G26I50J0K4 ; Tool movement by program 1 Tool movement by program 2 G72X– Y– ; An under–mentioned coordinates values can
  • Page 9313. FUNCTION TO SIMPLIFY PROGRAMMING NC FUNCTION B–63122EN/01 13.3 STORAGE AND CALL  BY ADDRESS A/B   G72X100.Y100. ; A2G26I50.J0K4 ; Designated for storage after execution G72X200.Y100. ; B2 ;  Recall of pattern A2 G72X250.Y200. ; B2 ; G72X150.Y200. ; B2 ;    (150, 200) (250, 200) (100, 100
  • Page 9413. FUNCTION TO SIMPLIFY B–63122EN/01 NC FUNCTION PROGRAMMING 13.4 AUTOMATIC Y REPOSITIONING (G75) X Work clamp Work holder G75X– ; A series of the following commands can be given, using G75X_ ; command. (1) M10 ; : Work clamp (2) G70G91YyR ; : Escape of Y axis (3) G70G91X–X ; : Shift of X axis (4)
  • Page 9513. FUNCTION TO SIMPLIFY PROGRAMMING NC FUNCTION B–63122EN/01 13.5 U/V/W MACRO FUNCTION Program : : Uxx to Vxx Storage and execution of multiple blocks : : Wxx Call and execution of stored multiple blocks : : : : The macro function can register a plurality of blocks as one macro and call them whenev
  • Page 9613. FUNCTION TO SIMPLIFY B–63122EN/01 NC FUNCTION PROGRAMMING 13.5.2 It is possible to call a plurality of blocks stored previously as Macro by Macro Call giving instructions with a 2–digit numeral following address W. (W Command) 13.5.3 Up to triple accessing is possible: another macro is called fr
  • Page 9713. FUNCTION TO SIMPLIFY PROGRAMMING NC FUNCTION B–63122EN/01 13.6 MULTIPLE–PIECE MACHINING X Cutting margin Y     Material plate   y Cutting margin B x Fig. 13.6 It is a function for the multi–piece machining by which several identical product boards can be produced from one blank board wit
  • Page 9813. FUNCTION TO SIMPLIFY B–63122EN/01 NC FUNCTION PROGRAMMING 13.6.1 Specify a command prior to the punching command for a single plate. Base Point Command of Multi–piece Machining Format G98X xb Y yb I lx J ly P nx K ny ; xb : X axis coordinates values in the multi–piece machining base point (B of
  • Page 9913. FUNCTION TO SIMPLIFY PROGRAMMING NC FUNCTION B–63122EN/01 13.6.2 When machining commands stored by a macro function are to be called Multi–piecemachining to perform the multi–piece machining function, use the following commands. Command Format G73W wn Q q ; G74W wn Q q ; G73 :When punching from
  • Page 10013. FUNCTION TO SIMPLIFY B–63122EN/01 NC FUNCTION PROGRAMMING 13.6.4 By specifying a restart point by a P–code in a block containing G73/G74 Command to Restart (commands for punching multiple products), it is possible to restart punching multiple products at the specified restart point. Punching Mul
  • Page 10113. FUNCTION TO SIMPLIFY PROGRAMMING NC FUNCTION B–63122EN/01 13.7 The hole position gap accompanied bending is compensated and the drilling is performed. BENDING COMPENSATION (G38, G39)  Program format  Bending compensation for X axis direction G38I X1 J X2 K X3 P X4 Q X5 R α ;  Bending compensa
  • Page 10213. FUNCTION TO SIMPLIFY B–63122EN/01 NC FUNCTION PROGRAMMING 13.8 Workpieces are punched out with a start point specified by G72 or the current tool position as a start point and with an end point (x, y) using a LINEAR PUNCHING tool having dimensions (dx, dy). COMMAND G45 G45X x Y y P dx Q dy R r D
  • Page 10313. FUNCTION TO SIMPLIFY PROGRAMMING NC FUNCTION B–63122EN/01 (2) G72X10.Y10.; G45X100.Y10.P20.Q10.(R0) ; 10 20 (10, 10) (100, 10) Workpieces are punched out on the programmed line (no offset). G72X10.Y10. ; G45X100.Y10.P20.Q10.R–1 ; 10 20 (10, 10) (100, 10) Workpieces are punched out on the program
  • Page 10413. FUNCTION TO SIMPLIFY B–63122EN/01 NC FUNCTION PROGRAMMING 5 (10, 10) (100, 10) Specifying microjoint width j effects compensation at the punch start and end points, thus enabling correcting error on the resultant workpiece dimensions. 95
  • Page 10513. FUNCTION TO SIMPLIFY PROGRAMMING NC FUNCTION B–63122EN/01 13.9 Workpieces are punched out with a start point specified by G72 or the current tool position as a start point and with an end point (x, y) on a circle CIRCULAR with a radius of r in pitches of q, using a tool with a diameter of d. PUN
  • Page 106B–63122EN/01 NC FUNCTION 14. TOOL COMPENSATION FUNCTION 14 TOOL COMPENSATION FUNCTION 97
  • Page 10714. TOOL COMPENSATION FUNCTION NC FUNCTION B–63122EN/01 14.1 Tool position compensation along the X– and Y–axes can be effected for tools specified by a code consisting of character T and one to four digits TOOL OFFSET that follow it. The amount of compensation is specified in the least COMPENSATION
  • Page 108B–63122EN/01 NC FUNCTION 14. TOOL COMPENSATION FUNCTION 14.3 With this function, the programmed tool path can be offset when actually machining, for value of the tool radius set in the NC. CUTTER By measuring cutting radius for actual cutting, and setting the value in the COMPENSATION C NC as offset
  • Page 10914. TOOL COMPENSATION FUNCTION NC FUNCTION B–63122EN/01 14.4 Tool offset amount range which can be set is as follows: TOOL Increment system Metric input Inch input COMPENSATION IS–A 999.99 mm 99.999 inch MEMORY IS–B 999.999 mm 99.9999 inch 14.5 NUMBER OF TOOL OFFSETS 14.5.1  32 tool offsets (st
  • Page 110B–63122EN/01 NC FUNCTION 14. TOOL COMPENSATION FUNCTION 14.6 Tool offset amount can be set/changed with the G10 command. When G10 is commanded in absolute input (G90), the commanded offset CHANGING OF TOOL amount becomes the new tool offset amount. When G10 is commanded OFFSET AMOUNT in incremental
  • Page 11115. ACCURACY COMPENSATION FUNCTION NC FUNCTION B–63122EN/01 15 ACCURACY COMPENSATION FUNCTION 102
  • Page 11215. ACCURACY COMPENSATION B–63122EN/01 NC FUNCTION FUNCTION 15.1 The errors caused by machine position, as pitch error of the feed screw, can be compensated. This function is for better machining precision. STORED PITCH As the offset data are stored in the memory as parameters, compensations ERROR o
  • Page 11315. ACCURACY COMPENSATION FUNCTION NC FUNCTION B–63122EN/01 15.2 In large–stroke machines, a low axis–to–axis straightness would decrease their machining precision. Axis–to–axis straightness can be improved by STRAIGHTNESS compensating the position of an axis (compensation axis) associated with COMP
  • Page 11415. ACCURACY COMPENSATION B–63122EN/01 NC FUNCTION FUNCTION 15.3 This function is used to compensate lost motions proper to the machine system. Offset amounts come in a range of 0 to 9999 pulses per axis, BACKLASH and is set as parameters in detection unit. COMPENSATION 15.4 Since different backlas
  • Page 11515. ACCURACY COMPENSATION FUNCTION NC FUNCTION B–63122EN/01 15.5 Parameters and pitch errors data can be set by tape commands. therefore, following uses can be done example. PROGRAMMABLE  Parameter setting such as pitch errors compensation data, etc. when PARAMETER ENTRY the attachment is replaced.
  • Page 11616. COORDINATE SYSTEM B–63122EN/01 NC FUNCTION CONVERSION 16 COORDINATE SYSTEM CONVERSION 107
  • Page 11716. COORDINATE SYSTEM CONVERSION NC FUNCTION B–63122EN/01 16.1 Patterns specified by the program can be rotated. For example, by using this function, when the attached workpiece comes in a position which is COORDINATE somewhat rotated from the machine coordinates, the position can be SYSTEM ROTATION
  • Page 11816. COORDINATE SYSTEM B–63122EN/01 NC FUNCTION CONVERSION 16.2 Scaling can be commanded to figures commanded in the machining programs. SCALING (G50, G51) Format When each axis is scaling of the same magnification Format Sign explanation X_Y_ : Absolute command of G51 X_ Y_ P_ ; Scaling start center
  • Page 11916. COORDINATE SYSTEM CONVERSION NC FUNCTION B–63122EN/01 A scaling magnification can be set for each axis or for all axes in common. A parameter can specify whether it should be set for each axis or for all axes. Format Scaling of each axis (Mirror image) Format Sign explanation G51 X_ Y_ I_ J_ ; S
  • Page 120B–63122EN/01 NC FUNCTION 17. MEASUREMENT FUNCTIONS 17 MEASUREMENT FUNCTIONS 111
  • Page 12117. MEASUREMENT FUNCTIONS NC FUNCTION B–63122EN/01 17.1 By commanding axis move after G33, linear interpolation can be commanded like in G01. If an external skip signal is input during this SKIP FUNCTION command, the remainder of this command is cancelled, and program (G33) skips to the next block.
  • Page 122B–63122EN/01 NC FUNCTION 18. CUSTOM MACRO 18 CUSTOM MACRO 113
  • Page 12318. CUSTOM MACRO NC FUNCTION B–63122EN/01 18.1 A function covering a group of instructions is stored in the memory like the sub program. The stored function is represented by one instruction CUSTOM MACRO and is executed by simply writing the represented instruction. The group of instructions registe
  • Page 124B–63122EN/01 NC FUNCTION 18. CUSTOM MACRO Format G65 Pp Rr Aa Bb Kk ; p : Macro number of the bolt hole circle r : Radius a : Initial angle b : Angle between holes k : Number of holes With this function, the NC can be graded up by the user himself. Custom macro bodies may be offered to the users by
  • Page 12518. CUSTOM MACRO NC FUNCTION B–63122EN/01  WHILE () DO m (m = 1, 2, 3) : END m While is satisfied, blocks from DO m to END m is repeated. When is no more satisfied, it is executed from the block next to END m block. Example #
  • Page 126B–63122EN/01 NC FUNCTION 18. CUSTOM MACRO  Macro call by G codes The macro can also be called by the parameter–set G codes. Instead of commanding: N_ G65 P ; macro can be called just by commanding: N_ G** ;. G code for calling the macro, and macro pro
  • Page 12718. CUSTOM MACRO NC FUNCTION B–63122EN/01  Sub program call by T code By setting parameter, sub program can be called by T codes. When commanded: N_ G_ X_ Y_ … Tt ; , the same operation is done as when commanded: #149 = t; N_ G_ X_ Y_ … M98 P9000; . The T type code t is stored as arguments of commo
  • Page 128B–63122EN/01 NC FUNCTION 18. CUSTOM MACRO  A date (year, month, day) and time (hour, minute, second) are indicated.  Clock (Time can be known. A time can also be preset.)  Single block stop, Miscellaneous function end wait hold  Feed hold, Feed rate override, Exact stop inhibition The number of
  • Page 12918. CUSTOM MACRO NC FUNCTION B–63122EN/01 18.2 The range of common variables can be enlarged to #100 to #199, and #500 to #999 by the option. INCREASED CUSTOM MACRO COMMON VARIABLES 18.3 When custom macro interruption signal is input during automatic operation, the block currently under execution is
  • Page 130B–63122EN/01 NC FUNCTION 18. CUSTOM MACRO 18.4 There are two types of NC programs; those which, once created, are scarcely changed, and those which are changed for each machining type. MACRO EXECUTER The former are programs created by the custom macro, and the latter are FUNCTION machining programs.
  • Page 13118. CUSTOM MACRO NC FUNCTION B–63122EN/01 18.5 As with the conversational macro function, the C language executor function is used to customize screens and include unique operations. C LANGUAGE Application programs for display and operation can be created in standard EXECUTER C language, in the same
  • Page 13219. FUNCTIONS FOR HIGH SPEED B–63122EN/01 NC FUNCTION CUTTING 19 FUNCTIONS FOR HIGH SPEED CUTTING 123
  • Page 13319. FUNCTIONS FOR HIGH SPEED CUTTING NC FUNCTION B–63122EN/01 19.1 This function automatically decelerates the tool at a corner according to the corner angle. It can prevent a large sag caused by acceleration/ AUTOMATIC deceleration and servo delay on the junction of two blocks. CORNER If the angle
  • Page 13419. FUNCTIONS FOR HIGH SPEED B–63122EN/01 NC FUNCTION CUTTING 19.2 The machine is accelerated/decelerated automatically when the movement is started/stopped, so that the machine system should not be FEEDRATE CLAMP applied with any shock. When programming, therefore, no consideration BY CIRCULAR need
  • Page 13519. FUNCTIONS FOR HIGH SPEED CUTTING NC FUNCTION B–63122EN/01 19.3 This function is designed for high–speed precise machining. With this function, the delay due to acceleration/deceleration and the delay in the LOOK–AHEAD servo system which increase as the feedrate becomes higher can be CONTROL (G08
  • Page 13619. FUNCTIONS FOR HIGH SPEED B–63122EN/01 NC FUNCTION CUTTING 19.4 REMOTE BUFFER 19.4.1 When the remote buffer is connected to the host computer or input/output Remote Buffer (only at device via serial interface, a great amount of data can be sent to CNC consecutively at a high speed. 1–path Control
  • Page 13719. FUNCTIONS FOR HIGH SPEED CUTTING NC FUNCTION B–63122EN/01  Software interface The following three protocols are prepared as the communication protocols between the remote buffer and host computer. The protocol can be selected by a parameter according to the specifications of the device to be co
  • Page 138B–63122EN/01 NC FUNCTION 20. AXES CONTROL 20 AXES CONTROL 129
  • Page 13920. AXES CONTROL NC FUNCTION B–63122EN/01 20.1 Normally, the machine is controlled to move to a commanded position. However, when the follow up function is applied, actual position in the FOLLOW UP CNC is revised according to the move of the machine. FUNCTION Follow up function is activated when: –
  • Page 140B–63122EN/01 NC FUNCTION 20. AXES CONTROL 20.6 The traveling command of master axis is given to two motors of master and slave axes in a simple synchronous control. However, no SIMPLE synchronous error compensation or synchronous error alarm is detected SYNCHRONOUS for constantly detecting the posit
  • Page 14120. AXES CONTROL NC FUNCTION B–63122EN/01 20.8 C AXIS CONTROL Cxx+∆θx (n–1) Cxx+∆θ #2 Cxx #n #1 ∆θ θ G77Ir Jθ P∆θ Kn Cxx ; The angle position of the die (Tool) can be altered by the command from tape, memory, and MDI. In the past, a plurality of dies were required when the location was different, ev
  • Page 142B–63122EN/01 NC FUNCTION 20. AXES CONTROL 20.9 Any axis can be released from the control of CNC and directly controlled from PMC. That is, input of commands such as moving distance and feed AXIS CONTROL WITH rate commands from PMC allows the axis to move independently of other PMC axes moving under
  • Page 14320. AXES CONTROL NC FUNCTION B–63122EN/01 20.10 When enough torque for driving a large table cannot be produced by only one motor, two motors can be used for movement along a single axis. TANDEM CONTROL Positioning is performed by the main motor only. The sub motor is used only to produce torque. Wi
  • Page 144B–63122EN/01 NC FUNCTION 20. AXES CONTROL 20.11 G41.1 and G41.2 are used to control the rotation axis (C–axis) so that the tool is kept vertical to the direction in which it advances during cutting NORMAL–LINE operation. DIRECTION CONTROL (G40.1, G41.1, G42.1) Format G40.1 Normal–line direction cont
  • Page 14520. AXES CONTROL NC FUNCTION B–63122EN/01 In the cutter compensation mode, normal–line direction control is performed in reference to the path after it is compensated. The speed of C–axis rotation inserted at the beginning of each block is specified using a parameter except when dry run or rapid tra
  • Page 146B–63122EN/01 NC FUNCTION 21. MANUAL OPERATION 21 MANUAL OPERATION 137
  • Page 14721. MANUAL OPERATION NC FUNCTION B–63122EN/01 21.1  Jogging Each axis can be moved in the + or – direction for the time the button MANUAL FEED is pressed. Feed rate is the parameter set speed with override of: 0 – 655.34%, 0.01% step. The parameter set speed can be set to each axis.  Manual rapid
  • Page 148B–63122EN/01 NC FUNCTION 22. AUTOMATIC OPERATION 22 AUTOMATIC OPERATION 139
  • Page 14922. AUTOMATIC OPERATION NC FUNCTION B–63122EN/01 22.1 OPERATION MODE 22.1.1 The part program can be read and executed block by block from the input DNC Operation device connected to the reader/puncher interface. 22.1.2 Program registered in the memory can be executed. Memory Operation 22.1.3 Multipl
  • Page 150B–63122EN/01 NC FUNCTION 22. AUTOMATIC OPERATION 22.2 SELECTION OF EXECUTION PROGRAMS 22.2.1 Program number currently in need can be searched from the programs Program Number registered in memory operating the MDI. Search 22.2.2 The sequence number of the program on the currently selected memory Seq
  • Page 15122. AUTOMATIC OPERATION NC FUNCTION B–63122EN/01 22.3 ACTIVATION OF AUTOMATIC OPERATION 22.3.1 Set operation mode to memory operation, MDI operation, or tape Cycle Start operation, press the cycle start button, and automatic operation starts. 22.4 EXECUTION OF AUTOMATIC OPERATION 22.4.1 Buffer regis
  • Page 152B–63122EN/01 NC FUNCTION 22. AUTOMATIC OPERATION 22.5 AUTOMATIC OPERATION STOP 22.5.1 Automatic operation is stopped after executing the M00 (program stop) Program Stop commanded block. When the optional stop switch on the operator’s panel is turned on, the M01 (optional stop) commanded block is exe
  • Page 15322. AUTOMATIC OPERATION NC FUNCTION B–63122EN/01 22.6 MANUAL INTERRUPTION DURING AUTOMATIC OPERATION 22.6.1 During automatic operation, tool can be adjusted by the manual pulse Handle Interruption generator without changing the mode. The pulse from the manual pulse generator is added to the automati
  • Page 154B–63122EN/01 NC FUNCTION 22. AUTOMATIC OPERATION 22.7 Any of the files (programs) stored on a Floppy Cassette (FANUC CASSETTE F1) can be selected and executed. SCHEDULING  A list of the files stored on the Floppy Cassette can be displayed. FUNCTION  Files can be executed in an arbitrary order and
  • Page 15522. AUTOMATIC OPERATION NC FUNCTION B–63122EN/01 22.8 While a tape is running, a program input from an I/O device connected to the reader/punch interface can be executed and stored in memory. SIMULTANEOUS Similarly, a program stored in memory can be executed and output INPUT AND OUTPUT through the r
  • Page 156B–63122EN/01 NC FUNCTION 22. AUTOMATIC OPERATION 22.10 If a multiple–workpiece machining skip signal is input for a retrace re–forward movement during multiple–workpiece machining, MULTIPLE–WORKPIE machining of the current workpiece is stopped and machining of another CE MACHINING workpiece begins.
  • Page 15723. PROGRAM TEST FUNCTIONS NC FUNCTION B–63122EN/01 23 PROGRAM TEST FUNCTIONS 148
  • Page 158B–63122EN/01 NC FUNCTION 23. PROGRAM TEST FUNCTIONS 23.1 In machine lock condition, the machine does not move, but the position display is updated as if the machine were moving. Machine lock is valid ALL–AXES MACHINE even in the middle of a block. LOCK 23.2 Machine lock can be commanded per axis. MA
  • Page 15924. SETTING AND DISPLAY UNIT NC FUNCTION B–63122EN/01 24 SETTING AND DISPLAY UNIT 150
  • Page 160B–63122EN/01 NC FUNCTION 24. SETTING AND DISPLAY UNIT 24.1 The setting and display units are shown in Subsections II–24.1.1 to II–24.1.6. SETTING AND DISPLAY UNITS CNC control unit with 7.2″/8.4″ LCD: II–24.1.1 CNC control unit with 9.5″/10.4″ LCD: II–24.1.2 Separate–type small MDI unit: II–24.1.3 S
  • Page 16124. SETTING AND DISPLAY UNIT NC FUNCTION B–63122EN/01 24.1.2 CNC Control Unit with 9.5″/10.4″ LCD 152
  • Page 162B–63122EN/01 NC FUNCTION 24. SETTING AND DISPLAY UNIT 24.1.3 Separate–Type Small MDI Unit ADDRESS/NUMERIC KEYS SHIFT KEY CANCEL KEY INPUT KEY EDIT KEYS FUNCTION KEYS HELP KEY RESET KEY CURSOR KEYS PAGE–UP/DOWN KEYS 153
  • Page 16324. SETTING AND DISPLAY UNIT NC FUNCTION B–63122EN/01 24.1.4 Separate–Type Standard MDI Unit (Horizontal Type) HELP KEY RESET KEY ADDRESS/NUMERIC KEYS EDIT KEYS CANCEL KEY INPUT KEY SHIFT KEY CURSOR KEYS PAGE–UP/DOWN FUNCTION KEYS KEYS 154
  • Page 164B–63122EN/01 NC FUNCTION 24. SETTING AND DISPLAY UNIT 24.1.5 Separate–Type Standard MDI Unit (Vertical Type) HELP KEY RESET KEY ADDRESS/NUMERIC KEYS EDIT KEYS CANCEL KEY INPUT KEY SHIFT KEY CURSOR KEYS FUNCTION KEYS PAGE–UP/DOWN KEYS 155
  • Page 16524. SETTING AND DISPLAY UNIT NC FUNCTION B–63122EN/01 24.1.6 Separate–Type FA Full Keyboard (Vertical Type) (for 160i/180i) The key legends are the same as those of a personal computer keyboard. 156
  • Page 166B–63122EN/01 NC FUNCTION 24. SETTING AND DISPLAY UNIT 24.2 EXPLANATION OF THE KEYBOARD No. Key Function Reset key Used to reset the CNC to release an alarm or other similar state. (1) Help key Used to get help with operations such as for the MDI keys, when the operator (2) does not know what to do n
  • Page 16724. SETTING AND DISPLAY UNIT NC FUNCTION B–63122EN/01 No. Key Function Cursor keys Four cursor keys are provided. : Moves the cursor to the right or forwards in small units. (10) : Moves the cursor to left or backwards in small units. : Moves the cursor downward or forwards in large units. : Moves t
  • Page 168B–63122EN/01 NC FUNCTION 24. SETTING AND DISPLAY UNIT 24.2.2 The MDI panels have 10 soft keys (or 5 soft keys), a next-menu key on Explanation of the Soft the right, and a previous-menu key on the left. The next menu key and previous menu key are used to select the functions of the soft keys. Keys T
  • Page 16925. DISPLAYING AND SETTING DATA NC FUNCTION B–63122EN/01 25 DISPLAYING AND SETTING DATA Displays are different between the 160i/180i (with PC functions) and the 16i/18i (with no PC functions). This chapter describes what and how the 16i/18i displays. 160
  • Page 170B–63122EN/01 NC FUNCTION 25. DISPLAYING AND SETTING DATA 25.1 The following display appears on the CRT screen. On a 7 soft key type device, each screen can display 640 characters (40 characters  16 lines). DISPLAY On a 12 soft key type device, each screen can display 2080 characters (80 characters
  • Page 17125. DISPLAYING AND SETTING DATA NC FUNCTION B–63122EN/01  Command value display The following two displays are performed.  Previously commanded modal value and command value to be executed (ACTIVE)  Command value of the next block  Setting (parameter set by Displays setting value. the operator)
  • Page 172B–63122EN/01 NC FUNCTION 25. DISPLAYING AND SETTING DATA D Displaying the alarm A maximum of 25 of the most recent alarms generated in CNC can be history recorded. Each alarm record consists of the following items: - Date and time - Alarm number - Alarm message Any of the records can be deleted from
  • Page 17325. DISPLAYING AND SETTING DATA NC FUNCTION B–63122EN/01 25.2 The Japanese, English, German, French, Italian, Spanish, Chinese, and Korean are prepared as display languages. Select the language to be LANGUAGE displayed by parameters. SELECTION 25.3 Time is displayed in the hour/minute/second format
  • Page 174B–63122EN/01 NC FUNCTION 25. DISPLAYING AND SETTING DATA 25.5 In this function, functions of switches on the machine operator’s panel is done by operation on the MDI panel. Mode selection and jogging SOFTWARE override, etc. can be operated by setting operation via the MDI panel with OPERATOR’S PANEL
  • Page 17525. DISPLAYING AND SETTING DATA NC FUNCTION B–63122EN/01 OPERATOR’S PANEL O0000 N00000 BLOCK SKIP : OFF ON SINGLE BLOCK : OFF ON MACHINE LOCK : OFF ON DRY RUN : OFF ON PROTECT KEY : PROTECT RELEASE FEED HOLD : OFF ON ACTUAL POSITION (ABSOLUTE) X 0.000 Z 0.000 S 0 T0000 EDIT **** *** *** 09:36:48 [ M
  • Page 176B–63122EN/01 NC FUNCTION 25. DISPLAYING AND SETTING DATA 25.7 GRAPHIC DISPLAY FUNCTION 25.7.1 This function allows display of tool path on the screen, making program Graphic Display check easier. Function  Tool path of the machining program can be displayed. Machining process can be checked just by
  • Page 17725. DISPLAYING AND SETTING DATA NC FUNCTION B–63122EN/01 25.8 The waveforms of servo data items (errors, torques, timing pulses, etc.) and signals between the CNC and the PMC can be displayed. SERVO WAVEFORM FUNCTION WAVE DIAGNOS. (GRAPHIC)) O0000 N00000 MDI **** *** *** [ START ][ TIME→][ ←TIME][ H
  • Page 178B–63122EN/01 NC FUNCTION 25. DISPLAYING AND SETTING DATA 25.9 SCREENS FOR SERVO DATA AND 25.9.1 On the servo setting screen, parameters required for standard initialization Servo Setting Screen of the servo motor are listed. The parameters can also be set. SERVO SETTING O0000 N00000 X AXIS Y AXIS IN
  • Page 17925. DISPLAYING AND SETTING DATA NC FUNCTION B–63122EN/01 25.10 The configurations of software and hardware required for maintenance of the CNC are displayed. SYSTEM The system configuration display function provides the following three CONFIGURATION screens: DISPLAY FUNCTION D Slot information scree
  • Page 180B–63122EN/01 NC FUNCTION 25. DISPLAYING AND SETTING DATA Software information SYSTEM CONFIG(SOFTWARE) O1234 N56789 SYSTEM B7F1 0001 BASIC+OPTION–A1  SERVO 9090 0001 PMC(SYS) 406A 0001 4099 0001 PMC(LAD) FS16 0001 MACRO LIB BZG1 0001 BOOT 60M3 0004 GRAPHIC–1 600W 001Z    MEM **** *** *** 19:14:23
  • Page 18125. DISPLAYING AND SETTING DATA NC FUNCTION B–63122EN/01 25.11 When an alarm occurs, or when the operator is not certain what to do next, HELP FUNCTION pressing the HELP key on the MDI panel displays detailed alarm information or instructions for operation. One of the following three screens can be
  • Page 182B–63122EN/01 NC FUNCTION 25. DISPLAYING AND SETTING DATA  Operation instruction screen HELP (OPERATION METHOD) O1234 N00001 <<1. PROGRAM EDIT>> 1/4 *DELETE ALL PROGRAMS MODE : EDIT SCREEN: PROGRAM OPR : (09999) – *DELETE ONE PROGRAM MODE : EDIT SCREEN: PROGRAM OPR : (0+PROGRAM NUMBER) –
  • Page 18325. DISPLAYING AND SETTING DATA NC FUNCTION B–63122EN/01 25.12 A data protection key can be installed on the machine side for protection of various NC data. The following three input signals are offered, DATA PROTECTION according to type of data to be protected. KEY  KEY 1 Allows input of tool comp
  • Page 184B–63122EN/01 NC FUNCTION 25. DISPLAYING AND SETTING DATA 25.15 The remote diagnosis function allows CNC status monitoring and modification to CNC data to be performed remotely by menu–based REMOTE DIAGNOSIS operation. The remote diagnosis function, operating under MS–DOS, is installed on a standard
  • Page 18525. DISPLAYING AND SETTING DATA NC FUNCTION B–63122EN/01  CNC → computer  Alarm information  Machine position  Absolute position  Skip position  Servo delay  Acceleration/deceleration delay  Diagnosis  Parameter  Display screen status  Modal information  Pitch error data  Tool offset va
  • Page 186B–63122EN/01 NC FUNCTION 25. DISPLAYING AND SETTING DATA 25.16 CNC programs stored in memory can be grouped according to their names, thus enabling the listing and output of CNC programs on a DIRECTORY DISPLAY group–by–group basis. AND PUNCH FOR A To assign multiple CNC programs to a single group, a
  • Page 18725. DISPLAYING AND SETTING DATA NC FUNCTION B–63122EN/01 25.18 The periodic maintenance screen shows the current statuses of those consumables that require periodic replacement (backup battery, LCD PERIODIC backlight, touch pad, etc). An item whose service life has expired is MAINTENANCE indicated b
  • Page 188B–63122EN/01 NC FUNCTION 25. DISPLAYING AND SETTING DATA 25.21 When the VGA graphic control function is supported, the VGA screen colors can be set on the color setting screen. COLOR SETTING SCREEN COLORING O0000 N00000 [1]  ALARM 8  SELECT WINDOW BAR 2  TITLE SOFT KEY 1 9  NONE 3  INPUT
  • Page 18926. PART PROGRAM STORAGE AND EDITING NC FUNCTION B–63122EN/01 26 PART PROGRAM STORAGE AND EDITING 180
  • Page 19026. PART PROGRAM STORAGE B–63122EN/01 NC FUNCTION AND EDITING 26.1 The following part program storage and editing is possible FOREGROUND  Program tape registration to the memory  Single program registration EDITING  Multi program tape registration  Program input via MDI  Program deletion  Sing
  • Page 19126. PART PROGRAM STORAGE AND EDITING NC FUNCTION B–63122EN/01 26.3 The following editing is possible. EXPANDED PART  Conversion PROGRAM EDITING  Address conversion An address in the program can be converted to another address. For example address X in the program can be converted to address Y.  W
  • Page 19226. PART PROGRAM STORAGE B–63122EN/01 NC FUNCTION AND EDITING 26.7 The following two screens can be displayed with graphic data for guidance in programming in the CNC format: CONVERSATIONAL  G code list PROGRAMMING OF  Standard format of a G-code block FIGURES Programs can be created by referring
  • Page 19327. DIAGNOSIS FUNCTIONS NC FUNCTION B–63122EN/01 27 DIAGNOSIS FUNCTIONS 184
  • Page 194B–63122EN/01 NC FUNCTION 27. DIAGNOSIS FUNCTIONS 27.1 The NC checks the following itself. SELF DIAGNOSIS  Abnormality of detection system FUNCTIONS  Abnormality of position control unit  Abnormality of servo system  Overheat  Abnormality of CPU  Abnormality of ROM  Abnormality of RAM  Abnorm
  • Page 19528. DATA INPUT/OUTPUT NC FUNCTION B–63122EN/01 28 DATA INPUT/OUTPUT The NC has the following input/output data. These data are input/output via various input/output devices as CRT/MDI, tape reader, etc.  Input data The NC has the following input data.  Part program  Tool compensation amount and W
  • Page 196B–63122EN/01 NC FUNCTION 28. DATA INPUT/OUTPUT 28.1 The following can be input/output via the reader/punch interface. READER/PUNCH  Part program registration/output INTERFACES  Tool compensation amount and workpiece origin offset data input/output  Tool data input/output  Custom macro common var
  • Page 19728. DATA INPUT/OUTPUT NC FUNCTION B–63122EN/01 28.2 The following Input/Output devices are prepared, which are connectable to the reader/puncher interface. INPUT/OUTPUT DEVICES 28.2.1 When the Floppy Cassette is connected to the NC, machining programs FANUC Floppy stored in the NC can be saved on a
  • Page 198B–63122EN/01 NC FUNCTION 28. DATA INPUT/OUTPUT 28.3 By using the external program input start signal, a program can be loaded from an input unit into CNC memory. EXTERNAL When an input unit such as the FANUC Handy File or FANUC Floppy PROGRAM INPUT Cassette is being used, a file can be searched for
  • Page 19928. DATA INPUT/OUTPUT NC FUNCTION B–63122EN/01 28.5 DNC1 is a poprietary communication network allowing information exchange between the cell controller and CNC machine tools. DNC1 CONTROL DNC1 is classified into two mode, Mode–1 and Mode–2, by the connection models. Explanations  Mode–1 In the Mod
  • Page 200B–63122EN/01 NC FUNCTION 28. DATA INPUT/OUTPUT 28.6 The FANUC DNC2 communication protocol enables transfer of various types of data between the CNC and a PC connected to it, using an DNC2 CONTROL RS–232–C interface. The features of FANUC DNC2 are described below: (1) DNC2 complies with the LSV2 comm
  • Page 20128. DATA INPUT/OUTPUT NC FUNCTION B–63122EN/01 28.7 The dara server has the following features: DATA SERVER (1) Drive high–speed machining operation by calling the subprogram from a built–in hard disk on the DATA SERVER BOARD(described as “HDD” below). (2) Input a NC program in the Host Computer int
  • Page 202B–63122EN/01 NC FUNCTION 28. DATA INPUT/OUTPUT 28.8 Power Mate programs, parameters, macro variables, and diagnostic (PMC) data are input/output using FANUC I/O Link. DATA INPUT/OUTPUT With FANUC I/O Link, slaves in groups 0 to 15 can be connected, FUNCTION BASED enabling data input/output to and fr
  • Page 20328. DATA INPUT/OUTPUT NC FUNCTION B–63122EN/01 28.9 When the power motion series is used as an additional (slave) axis of the CNC, the power motion manager enables displaying and setting data from POWER MOTION the CNC. Up to eight slave units can be connected. MANAGER The power motion manager suppor
  • Page 204B–63122EN/01 NC FUNCTION 29. SAFETY FUNCTIONS 29 SAFETY FUNCTIONS 195
  • Page 20529. SAFETY FUNCTIONS NC FUNCTION B–63122EN/01 29.1 With the emergency stop, all commands stops, and the machine stops immediately. Connect the “emergency stop” signal both to the control EMERGENCY STOP unit and to the servo unit side. When emergency stop is commanded, servo excitation is also reset,
  • Page 206B–63122EN/01 NC FUNCTION 29. SAFETY FUNCTIONS Stroke end limit switch Emergency stop button +X –X +Y –Y +Z –Z +4 –4 Relay power supply Release switch Spark killer SK EMG Relay I/O unit (module) to be emg1 connected to a CNC +24 *ESP α Series control amplifier (PSM) SVM SPM emg2 +24 *ESP MCCOFF3 MCCO
  • Page 20729. SAFETY FUNCTIONS NC FUNCTION B–63122EN/01 29.2 OVERTRAVEL FUNCTIONS 29.2.1 When the movable section has gone beyond the stroke end, a signal is Overtravel output, the axis decelerates to a stop, and overtravel alarm is displayed. All directions on all axes has overtravel signals. 29.2.2 The mova
  • Page 208B–63122EN/01 NC FUNCTION 29. SAFETY FUNCTIONS 29.2.4 When a new tool is mounted, position the tip of the tool on the two corners Externally Setting the of the limit area, and specify the machine coordinates of the corners in the parameters for stroke limit 1. The machine coordinates are stored in th
  • Page 20929. SAFETY FUNCTIONS NC FUNCTION B–63122EN/01 29.3 INTERLOCK 29.3.1 Axis feed specified to each axis can be stopped separately. If interlock is Interlock per Axis specified to any of the moving axis during cutting feed, all axes of the machine movement will decelerate to a stop. When interlock signa
  • Page 210B–63122EN/01 NC FUNCTION 29. SAFETY FUNCTIONS 29.4 Feed rate can be decelerated by an external deceleration signal from the machine side. A feed rate after deceleration can be set by parameter. EXTERNAL External deceleration is prepared every axis and every direction. DECELERATION When the tool is t
  • Page 21129. SAFETY FUNCTIONS NC FUNCTION B–63122EN/01 29.6 This is the safety function to set the safety zone for protecting the workpiece holder that holds the workpiece set on the carriage, and disable SAFETY ZONE punching in that area or forbid the tool to approach thereinto. CHECK Table #0 Tool figure a
  • Page 212B–63122EN/01 NC FUNCTION 29. SAFETY FUNCTIONS Axis stops, and alarm is given. Move direction  #0 #2 Fig. 29.6.1 (b) 29.6.2 Set the machine coordinate value when the workpiece holder is positioned Setting the Safety Zone at the tool center (punching position) by the parameters. 29.6.3 The detector o
  • Page 21329. SAFETY FUNCTIONS NC FUNCTION B–63122EN/01 Rising edge Falling edge Workpiece holder detection signal X Woekpiece holder position P Q Left end of the Right end of the workpiece holder workpiece holder 204
  • Page 214B–63122EN/01 NC FUNCTION 29. SAFETY FUNCTIONS 29.7 If the tool is positioned to the normal height (for punching), as shown below, the tool will interfere with the workpiece holder when the WORKPIECE workpiece holder moves into the turret. HOLDER By means of this function, the CNC monitors the positi
  • Page 21529. SAFETY FUNCTIONS NC FUNCTION B–63122EN/01 29.8 The servo axis speed is monitored. If the speed of an axis exceeds a preset maximum (specified by parameter setting), the corresponding signal is SERVO MOTOR output to a Y address (specified by parameter setting) of the PMC. SPEED DETECTION The foll
  • Page 216B–63122EN/01 NC FUNCTION 30. STATUS OUTPUT 30 STATUS OUTPUT 207
  • Page 21730. STATUS OUTPUT NC FUNCTION B–63122EN/01 30.1 This signal is sent to the machine side when CNC power is on and control becomes possible. Sending of this signal will be stopped when CNC READY SIGNAL power is turned off. 30.2 This signal is sent to the machine side when the servo system becomes oper
  • Page 218B–63122EN/01 NC FUNCTION 30. STATUS OUTPUT 30.12 This signal is output to show move direction of each axis. This signal is output for each axis. AXIS MOVE DIRECTION SIGNAL 30.13 This signal shows that the move command is done under rapid traverse. RAPID TRAVERSING SIGNAL 30.14 This signal shows that
  • Page 21931. EXTERNAL DATA INPUT NC FUNCTION B–63122EN/01 31 EXTERNAL DATA INPUT The external data input is as follows.  External tool compensation  External program number search  External work coordinate system shift  External machine zero point shift  External alarm message  External operator messag
  • Page 220B–63122EN/01 NC FUNCTION 31. EXTERNAL DATA INPUT 31.1 In this function, offset number is specified from outside to change tool offset amount. EXTERNAL TOOL The input signal designates whether the input tool offset amount is: COMPENSATION  absolute or incremental It the machine is equipped with auto
  • Page 22131. EXTERNAL DATA INPUT NC FUNCTION B–63122EN/01 31.6 Message to the operator is given from outside the NC, and the message is displayed on the screen. EXTERNAL The message is sent after the message number (0 to 999). Only one OPERATOR’S message with message number can be sent at a single time. Maxi
  • Page 22232. KEY INPUT FROM PMC (EXTERNAL B–63122EN/01 NC FUNCTION KEY INPUT CONTROL) 32 KEY INPUT FROM PMC (EXTERNAL KEY INPUT CONTROL) When the PMC inputs the code signal corresponding to a key on the MDI panel to the CNC, the code signal can be input in the same way as with actual operation of the key on
  • Page 22333. PERSONAL COMPUTER FUNCTIONS NC FUNCTION B–63122EN/01 33 PERSONAL COMPUTER FUNCTIONS With an open CNC architecture, it is possible for machine tool builders to incorporate advanced machine interface functions such as conventional automatic programming and manipulation based on their rich know–how
  • Page 224B–63122EN/01 NC FUNCTION 33. PERSONAL COMPUTER FUNCTIONS 33.1 The PC functions incorporated into the CNC have the following features: PERSONAL  Highly compatible with the IBM PC(*) COMPUTER  Capable of running a cornucopia of IBM PC(*) software on Windows 95TM without modification. FUNCTIONS  Can
  • Page 22533. PERSONAL COMPUTER FUNCTIONS NC FUNCTION B–63122EN/01 PC section hardware in the open CNC (PC functions incorporated in the CNC) Item Specification Remark Intel PentiumTM or CPU Either must be selected. Intel i486TM DX4 *1 Up to 32 Mbytes For Pentium Main memory Up to 24 Mbytes For i486 Hard disk
  • Page 226B–63122EN/01 NC FUNCTION 33. PERSONAL COMPUTER FUNCTIONS 33.2 The High–Speed Serial Bus is a serial interface to enable high–speed data transfer between a PC installed on the operator’s panel and the CNC HIGH–SPEED SERIAL control section. BUS (HSSB) If a dedicated interface board is installed in a c
  • Page 227APPENDI
  • Page 228B–63122EN/01 APPENDIX A. RANGE OF COMMAND VALUE A RANGE OF COMMAND VALUE (1) Linear axis with the millimeter feed screw (millimeter input) Increment system IS–A IS–B Least input increment 0.01mm 0.001mm Least command increment 0.01mm 0.001mm Max. programmable dimension 999999.99mm 99999.999mm Max.
  • Page 229A. RANGE OF COMMAND VALUE APPENDIX B–63122EN/01 (3) Linear axis with the inch feed screw (inch input) Increment system IS–B IS–C Least input increment 0.001 inch 0.0001 inch Least command increment 0.001 mm 0.0001 mm Max. programmable dimension 99999.999 inches 9999.9999 inches Max. rapid traverse
  • Page 230B–63122EN/01 APPENDIX A. RANGE OF COMMAND VALUE (5) Rotation axis Increment system IS-A, IS-B Least input increment 0.001 deg Least command increment 0.001 deg Max. programmable dimension 99999.999 deg Max. rapid traverse *1 240,000 deg/min Feedrate range *1 1 to 240,000 deg/min Incremental feed 0.
  • Page 231B. FUNCTIONS AND TAPE FORMAT LIST APPENDIX B–63122EN/01 B FUNCTIONS AND TAPE FORMAT LIST Functions Illustrations Tape format Positioning (G00) IP G00X Y C ; Start point Linear interpolation (G01) G01X Y F ; IP Start point Circular interpolation R_ Start point G02 (G02, G03) G17 X_ Y_ F_ ; G03 I_ J_
  • Page 232B–63122EN/01 APPENDIX B. FUNCTIONS AND TAPE FORMAT LIST Functions Illustrations Tape format Change of offset value by G10L11P R ; progrsm (G10) G10L2P X Y ; (Workpiece zero point offset) Plane selection G17; (G17, G18, G19) G18; G19; Inch/metric switching Inch input G20; (G20, G21) Metric input G21;
  • Page 233B. FUNCTIONS AND TAPE FORMAT LIST APPENDIX B–63122EN/01 Functions Illustrations Tape format Setting in workpiece coor- G54 dinate system : X_ Y_ ; G59 Workpiece coordinate system Machine coordinate system Workpiece zero point offset Pattern function Refer to “Pattern Function” G26 ; (G26, G76, G77,
  • Page 234B–63122EN/01 APPENDIX B. FUNCTIONS AND TAPE FORMAT LIST Functions Illustrations Tape format Multi-piece machining Refer to “Multi-piece machining”. G73 function W_ Q_ ; (G73, G74, G98) G74 W : Macro number ÂÂÂ G98X_Y_I_P_J_K_: Coordinate rotation (G84, G85) ÂÂÂ G84X_Y_R_; G85 ; Cancel θ Absolute/Inc
  • Page 235C. LIST OF TAPE CODE APPENDIX B–63122EN/01 C LIST OF TAPE CODE ISO code EIA code Custom Remarks macro B Character 8 7 6 5 4 3 2 1 Character 8 7 6 5 4 3 2 1 Not Used used 0    0   Number 0 1      1   Number 1 2      2   Number 2 3      3     Number 3 4      4   Numb
  • Page 236B–63122EN/01 APPENDIX C. LIST OF TAPE CODE ISO code EIA code Custom Remarks macro B Character 8 7 6 5 4 3 2 1 Character 8 7 6 5 4 3 2 1 Not Used used Z      z     Address Z Delete DEL          Del         (deleting a   mispunch) No. punch. With EIA code, this code cannot
  • Page 237C. LIST OF TAPE CODE APPENDIX B–63122EN/01 ISO code EIA code Custom Remarks macro B Character 8 7 6 5 4 3 2 1 Character 8 7 6 5 4 3 2 1 Not Used used Parameter =         Equal sign  (No. 6011) Right angle >        ___    bracket Question ?        ___    mark Commercial @
  • Page 238B–63122EN/01 APPENDIX D. EXTERNAL DIMENSIONS BASIC UNIT D EXTERNAL DIMENSIONS BASIC UNIT 231
  • Page 239D. EXTERNAL DIMENSIONS BASIC UNIT APPENDIX B–63122EN/01 Fig. 1 EXTERNAL DIMENSIONS OF CNC CONTROL UNIT WITH 7.2″/8.4″ LCD At the rear of the metal panel, the area within 8 mm of the outside edge is left unpainted. Mounting hole diagram M4 stud No optional slot Two optional slots Four optional slots
  • Page 240B–63122EN/01 APPENDIX D. EXTERNAL DIMENSIONS BASIC UNIT Fig. 2 EXTERNAL DIMENSIONS OF CNC CONTROL UNIT WITH 9.5″/10.4″ LCD At the rear of the metal panel, the area within 8 mm of the outside edge is left unpainted. Mounting hole diagram M4 stud No optional slot Two optional slots Four optional slots
  • Page 241E. PRINT BOARD APPENDIX B–63122EN/01 E PRINT BOARD 234
  • Page 242B–63122EN/01 APPENDIX E. PRINT BOARD Motherboard (without PC functions) Rear of the unit COP10A (Connector on axis control card) JD36A JD36B JA40 JD1A JA41 CA55 CA54 CP1B CP1A Motherboard CN3 CN8B JNA Motherboard CN2 JD36A JD36B JA40 JD1A JA41 CA55 CA54 CP1B CP1A Axis control card Display control ca
  • Page 243E. PRINT BOARD APPENDIX B–63122EN/01 Connector name Function COP10A Servo amplifier (FSSB) CA55 MDI CA54 Servo check JD36A RS–232C serial port JD36B RS–232C serial port JA40 Analog output/high–speed DI JD1A Serial I/O Link JA41 Serial spindle/position coder CP1B DC24V–OUT CP1A DC24V–IN JNA F–BUS int
  • Page 244B–63122EN/01 APPENDIX E. PRINT BOARD Motherboard (with PC functions) Rear of the unit COP10A (Connector on axis control card) JD33 CA55 CA54 JD36A JD36B JA40 JD1A JA41 CN2 CD32B CP1B CP1A CD32A CNY1 CD34 CNH1 Motherboard CN3 CN8B JNA Motherboard CN2 JD33 CA55 CA54 JD36A JD36B JA40 JD1A JA41 CD32B CP
  • Page 245E. PRINT BOARD APPENDIX B–63122EN/01 Connector name Function JD33 RS–232C on PC side COP10A Servo amplifier (FSSB) CA55 MDI CA54 Servo check JD36A RS–232C serial port JD36B RS–232C serial port JA40 Analog output/high–speed DI JD1A Serial I/O Link JA41 Serial spindle/position coder CP1B DC24V–OUT CP1
  • Page 246B–63122EN/01 APPENDIX E. PRINT BOARD Inverter PCB With 4 option slots CN39A CN39B CN39C CN39D CP1 CP8 CN3 Without option slots or with 2 option slots CN39A CN39B CP1 CP8 CN3 Connector name Function CN39A CN39B Fan power ower CN39C CN39D CP8 Battery CP1 LCD backlight power CN3 Inverter PCB power 239
  • Page 247E. PRINT BOARD APPENDIX B–63122EN/01 Sub–CPU board CPU card Axis control card COP10A JNA F–BUS connector CA54 JA41 JA40 Connector name Function COP10A Servo amplifier (FSSB) CA54 Servo check JA41 Serial spindle/position coder JA40 Analog output Sub–CPU for 2 to 8 servo Spindle control circuit Analog
  • Page 248B–63122EN/01 APPENDIX E. PRINT BOARD Loader control board Axis control card CPU card COP10A JNA F–BUS connector CA54 JD1A Connector name Function COP10A Servo amplifier (FSSB) CA54 Servo check JD1A Serial I/O Link 2 or 4 servo Main memory for PMC control Loader control axes loader control circuit fu
  • Page 249E. PRINT BOARD APPENDIX B–63122EN/01 Serial communication board (remote buffer/ DNC1/DNC2/HDLC) CPU card JNA F–BUS connector JD28A JD6A Connector name Function JD28A RS–232C serial port JD6A RS–422 serial port Communication function 242
  • Page 250B–63122EN/01 APPENDIX E. PRINT BOARD C board CPU card JNA F–BUS connector C function for PMC 243
  • Page 251E. PRINT BOARD APPENDIX B–63122EN/01 CAP–II board CPU card JNA F–BUS connector  Connector name Function Connector name Function CP8B For SRAM backup battery CAP II function 244
  • Page 252B–63122EN/01 APPENDIX E. PRINT BOARD RISC board JNA F–BUS connector High–precision contour control function 245
  • Page 253E. PRINT BOARD APPENDIX B–63122EN/01 Data server board JNA Add–on board F–BUS connector CNH1 CD27 CD27 is provided on the add–on board. Connector name Function CNH1 IDE hard disk interface CD27 Ethernet interface Data server function 246
  • Page 254B–63122EN/01 APPENDIX E. PRINT BOARD HSSB interface board JNA F–BUS connector COP7 Connector name Function COP7 High–speed serial bus interface High–speed serial bus interface 247
  • Page 255F. EXTERNAL DIMENSIONS MDI UNIT APPENDIX B–63122EN/01 F EXTERNAL DIMENSIONS MDI UNIT 248
  • Page 256B–63122EN/01 APPENDIX F. EXTERNAL DIMENSIONS MDI UNIT Fig. 1 EXTERNAL DIMENSIONS OF SEPARATE–TYPE SMALL MDI UNIT Mounting hole diagram At the rear of the metal panel, the area within 8 mm of the outside edge is left unpainted. 249
  • Page 257F. EXTERNAL DIMENSIONS MDI UNIT APPENDIX B–63122EN/01 Fig. 2 EXTERNAL DIMENSIONS OF SEPARATE–TYPE STANDARD MDI UNIT Mounting hole diagram At the rear of the metal panel, the area within 8 mm of the outside edge is left unpainted. 250
  • Page 258B–63122EN/01 APPENDIX F. EXTERNAL DIMENSIONS MDI UNIT EXTERNAL DIMENSIONS OF SEPARATE–TYPE STANDARD MDI UNIT (HORIZONTAL TYPE) Fig. 3 Mounting hole diagram At the rear of the metal panel, the area within 8 mm of the outside edge is left unpainted. 251
  • Page 259F. EXTERNAL DIMENSIONS MDI UNIT APPENDIX B–63122EN/01 EXTERNAL DIMENSIONS OF SEPARATE–TYPE STANDARD MDI UNIT (VERTICAL TYPE) Fig. 4 Mounting hole diagram At the rear of the metal panel, the area within 8 mm of the outside edge is left unpainted. 252
  • Page 260B–63122EN/01 APPENDIX F. EXTERNAL DIMENSIONS MDI UNIT EXTERNAL DIMENSIONS OF SEPARATE–TYPE STANDARD MDI UNIT (VERTICAL TYPE) FOR 160i/180i Fig. 5 Mounting hole diagram At the rear of the metal panel, the area within 8 mm of the outside edge is left unpainted. 253
  • Page 261F. EXTERNAL DIMENSIONS MDI UNIT APPENDIX B–63122EN/01 Fig. 6 EXTERNAL DIMENSIONS OF FA FULL KEYBOARD Mounting hole diagram M4 stud At the rear of the metal panel, the area within 8 mm of the outside edge is left unpainted. 254
  • Page 262B–63122EN/01 APPENDIX F. EXTERNAL DIMENSIONS MDI UNIT Fig. 7(a) EXTERNAL DIMENSIONS OF 101–TYPE FULL KEYBOARD (ENGLISH) Specification No.: A86L–0001–0210 NOTE This keyboard is not dust–proof. It should be used for program development only. It can be used at temperatures of between 0 and 40°C. 255
  • Page 263F. EXTERNAL DIMENSIONS MDI UNIT APPENDIX B–63122EN/01 Fig. 7(b) EXTERNAL DIMENSIONS OF 106–TYPE FULL KEYBOARD (JAPANESE) Specification No.: A86L–0001–0211 NOTE This keyboard is not dust–proof. It should be used for program development only. It can be used at temperatures of between 0 and 40°C. 256
  • Page 264B–63122EN/01 APPENDIX F. EXTERNAL DIMENSIONS MDI UNIT Fig. 8 EXTERNAL DIMENSIONS OF MOUSE Specification No.: A86L–0001–0212 66±2 13±1 25±1.5 104±2 41.5 ± 2 1.5±1 Units: mm NOTE This mouse is not dust–proof. It should be used for program development only. It can be used at temperatures of between 0 a
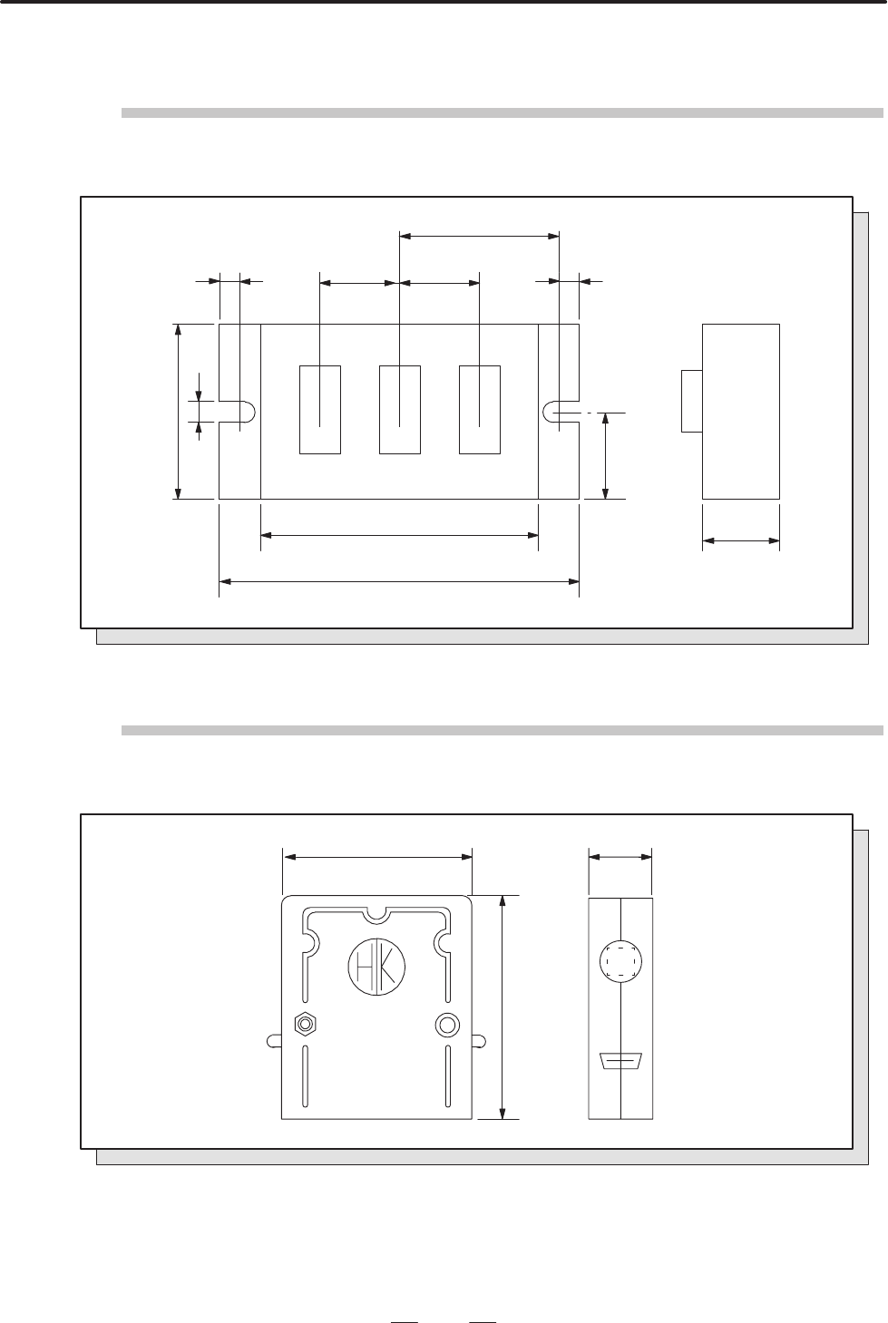
  • Page 265G. EXTERNAL DIMENSIONS OF EACH UNIT APPENDIX B–63122EN/01 G EXTERNAL DIMENSIONS OF EACH UNIT 258
  • Page 266B–63122EN/01 APPENDIX G. EXTERNAL DIMENSIONS OF EACH UNIT EXTERNAL DIMENSIONS OF HIGH–SPEED SERIAL BUS INTERFACE BOARD TYPE 2 (FOR PC) Fig. 1 Specification No.: A20B–8100–0100 259
  • Page 267G. EXTERNAL DIMENSIONS OF EACH UNIT APPENDIX B–63122EN/01 Fig. 2 POSITION CODER Specification : A86L–0026–0001#102 (Max. 4000rpm) A86L–0026–0001#002 (Max. 6000rpm) 2 +0 –0.11 φ14.3 φ68 –0.006 –0.009 –0.017 –0.025 φ16 φ15 φ50 1.15 +0.14 –0 20 5 Connector 30 3 98 4 φ5.4 Note : Mechanical specification
  • Page 268B–63122EN/01 APPENDIX G. EXTERNAL DIMENSIONS OF EACH UNIT Fig. 3 MANUAL PULSE GENERATOR Specification : A860–0202–T001 83.5 φ80.0 φ55.0 50.0 30.0 M4X8.0 60.0 3 holes equally spaced on a 72 dia PULSE GENERATOR 11.0 FANUC LTD 0V A 5VB M3 screw terminal 120.0° 261
  • Page 269G. EXTERNAL DIMENSIONS OF EACH UNIT APPENDIX B–63122EN/01 Fig. 4 PENDANT TYPE MANUAL PULSE GENERATOR Specification : A860–0202–T004 to T015 A860–0202–T004 to T009 90 38.0 M3 screw terminal 25 140 100.0 39.0 M3 screw terminal A860–0202–T010 to T015 90 38.0 M3 screw terminal 25 140 100.0 39.0 M3 screw
  • Page 270B–63122EN/01 APPENDIX G. EXTERNAL DIMENSIONS OF EACH UNIT Fig. 5 EXTERNAL DIMENSIONS OF SEPARATE DETECTOR INTERFACE UNIT 263
  • Page 271G. EXTERNAL DIMENSIONS OF EACH UNIT APPENDIX B–63122EN/01 Fig. 6 BATTERY CASE FOR SEPARATE TYPE ABSOLUTE PULSE CODER Specification : A06B–6050–K060 103 Minus polarity indication 4–M4 counter sinking Plus polarity indication Plus terminal with 3–M3 screw holes Minus terminal with 3–M3 screw holes FAN
  • Page 272B–63122EN/01 APPENDIX G. EXTERNAL DIMENSIONS OF EACH UNIT Fig. 7 EXTERNAL DIMENSIONS OF TAP 50 25 25 5 5 65 5 32.5 1 2 3 100 35 120 Fig. 8 EXTERNAL DIMENSIONS OF TERMINAL RESISTANCE UNIT 39.3 16.0 ÅÅÅ 47.0 ÅÅÅ 265
  • Page 273G. EXTERNAL DIMENSIONS OF EACH UNIT APPENDIX B–63122EN/01 Fig. 9 EXTERNAL DIMENSIONS OF EXTERNAL CNC BATTERY UNIT Main unit Cover 103 115 M4 tap  4 70 81 93 5 13.5 47 Mounting panel hole drilling Mounting hole (countersink) 145 The battery unit is fitted with a 14–m battery cable. 266
  • Page 274B–63122EN/01 APPENDIX G. EXTERNAL DIMENSIONS OF EACH UNIT Fig. 10 EXTERNAL DIMENSIONS OF PUNCH PANEL (NARROW TYPE) Mounting hole diagram At the rear of the metal panel, the area within 8 mm of the outside edge is left unpainted. 267
  • Page 275G. EXTERNAL DIMENSIONS OF EACH UNIT APPENDIX B–63122EN/01 Fig. 11 PORTABLE TAPE READER WITHOUT REELS Specification : A13B–0074–B001 380 240 Paint : Munsell No. 5GY3.5/0.5 leather tone finish Weight : Applox. 15kg 268
  • Page 276B–63122EN/01 APPENDIX G. EXTERNAL DIMENSIONS OF EACH UNIT Fig. 12 PORTABLE TAPE READER WITH REELS Specification : A13B–0087–B001 530 269
  • Page 277G. EXTERNAL DIMENSIONS OF EACH UNIT APPENDIX B–63122EN/01 Fig. 13 STANDARD MACHINE OPERATOR’S PANEL Specification : A02B–0080–C141 (T series) A02B–0080–C142 (M series) A02B–0120–C271 (T series for CE Marking) A02B–0120–C272 (M series for CE Marking) 270
  • Page 278B–63122EN/01 Index ƠNumbersơ ƠCơ 1–block plural M command, 69 C axis control, 132 C language executer function, 122 C–axis backlash compensation for individual indexes (option), 106 ƠAơ C–axis position compensation, 98 Abnormal load detection, 201 Changing of tool offset amount (programmable data in
  • Page 279INDEX B–63122EN/01 Displaying and setting data, 160 Floating reference position return (G30.1), 41 Displaying operation history, 174 Follow up function, 130 Distribution end signal, 208 Foreground editing, 181 DNC operation, 140 Function to simplify programming, 78 DNC1 control, 190 Functions and ta
  • Page 280B–63122EN/01 INDEX Line at angle (G76), 79 Number of basic controlled axes, 16 Linear acceleration/deceleration after cutting feed interpolation, Number of basic simultaneously controlled axes, 16 34 Number of controlled axes expanded (all), 16 Linear acceleration/deceleration before cutting feed Nu
  • Page 281INDEX B–63122EN/01 Range of command value, 221 Servo wave form function, 168 Rapid traverse, 27 Setting a workpiece coordinate system (using G54 to G59), 46 Rapid traverse bell–shaped acceleration/deceleration, 33 Setting a workpiece coordinate system (using G92), 45 Rapid traverse override, 29 Sett
  • Page 282B–63122EN/01 INDEX Tool offset compensation, 98 ƠWơ Touch pad, 178 Workpiece coordinate system, 45 ƠUơ Workpiece holder interference avoidance function, 205 U/V/W macro function, 86 Workpiece origin offset value change (programmable data input) (G10), 48 i–5
  • Page 283Revision Record FANUC Series 16i/18i/160i/180i–PA DESCRIPTIONS (B–63122EN) 01 Oct., ’97 Edition Date Contents Edition Date Contents
  • Page 284· No part of this manual may be reproduced in any form. · All specifications and designs are subject to change without notice.