
5. TUTORIAL
B–61863E–1/06
GENERAL
32
(5) Alarm message
Explanation of the message at the system alarm screen.
In case of PMC–SC/SC3/SC4
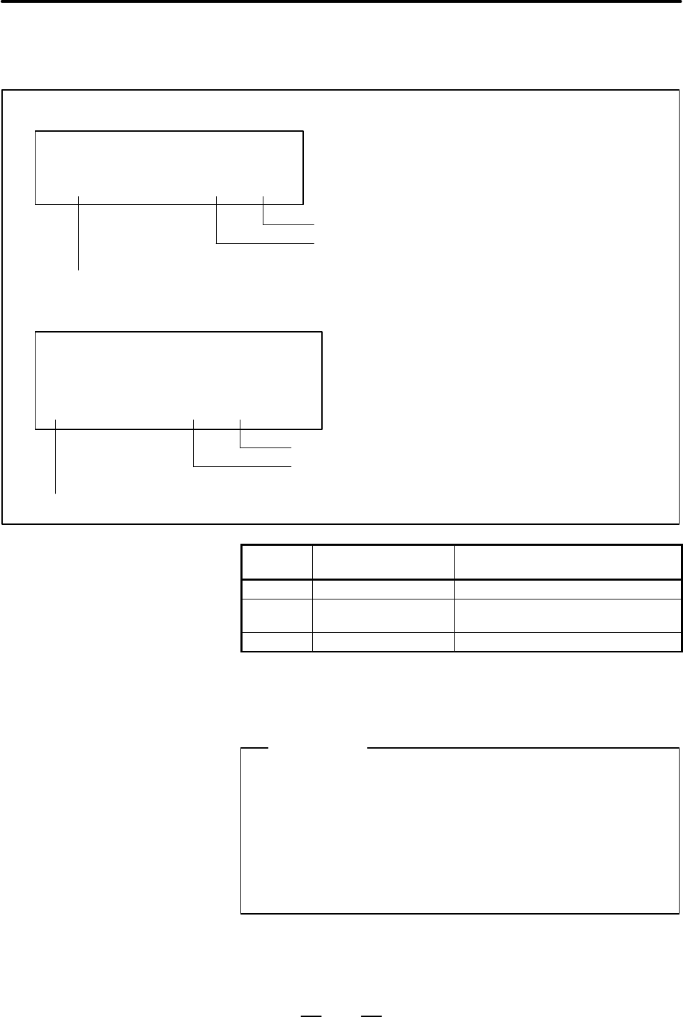
972 NMI OCCURRED IN OTHER MODULE
SLOT 02
PC113 CPU INTERRUPT 0103 00000408
^^ ^^^^ ^^^^^^^^
← Occurred at the board attatched to SLOT2
Address of system error
Offset(Hexadecimal)
Segment selector(Hexadecimal)
0103 to 02FB scope of the C language
2 digit numeral is exceptional
processing code for CPU (no normal termination)
In case of PMC–NB/NB2
SYSTEM ALARM
OTHER–CPU
ERROR OCCURRED AT 1995–01–07 00:00:00
02:026B:42:4047:0007:0162H582
GENERAL PROTECTION 0103:00000408:PC040
^^^^^^^^^^^^^^^^^^ ^^^^ ^^^^^^^^
Address of system error
Offset(Hexadecimal)
Segment selector(Hexadecimal)
0103 to 02FB scope of the C language
Contents of system alarm
PMC–SC
number
PMC–NB
message
Contents of error
00 DIVIDE ERROR Divisor is 0
12 STACK FAULT Stack area not enough
Wrong index value of local/auto array
13 GENERAL PROTECTION Segment limit over by wrong pointer operation
(6) How to find the source code for the system error.
a. Investigation of GDT table index number from segment value.
The following table is listed in the top section of the map file
(tutorial.map).
File tutorial.map
DESCRIPTOR TABLE MAP
TABLE = GDT BASE = 00845000H LIMIT = 012FH
TABLE INDEX SELECTOR DESCRIPTOR NAME
1 0008H ?SEGMENT.1
2 0010H ?SEGMENT.2
32 0103H ?SEGMENT.3
––––––––––––––––––––––––––––––––
33 010BH ?SEGMENT.4
34 0113H ?SEGMENT.5
:::
In case of this example the GDT table index is 32, because the
segment selector of the previously described alarm message is
0103H.