
B–61863E/15
1. GENERALSTEP SEQUENCE FUNCTION
969
Given these conditions, a step sequence method has been created to
describe programs structurally. It is well-suited to the control of entire
processes and provides an easy-to-understand visualized flow of the
process. The step sequence programming features the direct
representation of the control flow on a flow chart, as shown in Fig.1.1(c).
Each block of processing is described as a subprogram, using the ladder
method. The entire program is then created by combining these
subprograms.
Transition
Step 1
Step 2
Subprogram of ladder diagram
Drawing flow
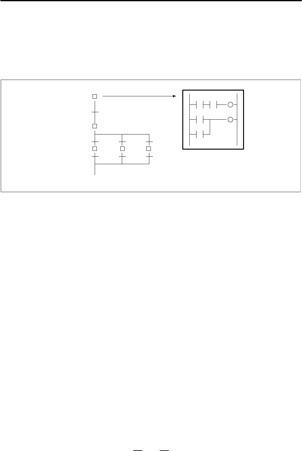
Fig. 1.1(c) Step sequence method
The step sequence method has the following features:
(1) Increased programming efficiency
D Since the flow of processes can be programmed directly, simple,
correct programming is enabled, reducing the time required for
programming.
D Even for complicated control, programming proceeds from the main
flow to detailed flow in each process, creating a structured, top-down
program, which is easy-to-understand by persons other than the
original creator.
D Structured modules can be used again easily.
(2) Easy debugging and maintenance
D Graphical display enables the operator to easily understand the
execution state of a program visually.
D Erroneous steps in a program can be found easily.
D A part of a program can be easily modified.
(3) High-speed program
D Since only the subprograms required for a certain process are
executed, the cycle time is reduced.
(4) Transition from ladder programs
D Since steps and transitions consist of conventional ladder programs,
conventional ladder programs can be converted to new step sequence
programs, without discarding ladder-program resources.
In step sequence programming, a sequence control program is divided
into two types of subprograms, steps and transitions. Steps describe
processes. Transitions connect steps and determine whether the transition
conditions from one step to another evaluate true. As shown in Fig.1.1(d),
a step sequence program is described using graphical symbols.