
B–61863E/15
5. FUNCTIONAL INSTRUCTIONSPMC SEQUENCE PROGRAM
193
Controls rotors, such as the tool post, ATC, rotary table, etc., and is used
for the following functions.
(a) Selection of the rotation direction via the shorter path
(b) Calculation of the number of steps between the current position and
the goal position
(c) Calculation of the position one position before the goal or of the
number of steps up to one position before the goal
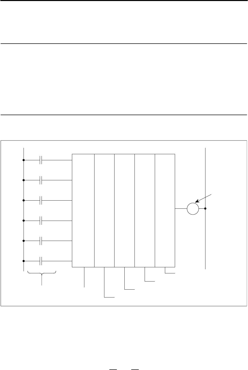
Fig.5.12.2 shows the expression format and Table 5.12.2 shows the
coding format.
DIR
W1
ffff. f
POS
ROT
(SUB 6)
INC
ffff. f
ACT
ffff. f
ffff. f
(1)
ffff
ffff. f
Rotating direction
output
Control condition
Instruction
RN0
ffff. f
BYT
ffff. f
(5)
(4)
(3)
(2)
(1)
(0)
(2)
ffff
(3)
ffff
(4)
ffff
Calculating result output address
Goal position address
Current position address
Rotor indexing address
Fig. 5.12.2 ROT instruction format
5.12
ROT (ROTATION
CONTROL)
5.12.1
Function
5.12.2
Format