
4. REFERENCE POSITION ESTABLISHMENT
B–64113EN–1/01
252
(b)Because an incorrect value is set in parameter No.1883 and 1884
when setting parameter SCP is incorrect when the automatic
setting of parameter No.1883 and 1884 was executed. It is very
dangerous. In this case, please execute automatic setting of
parameter No.1883 and 1884 again after setting the correct value
in parameter SCP.
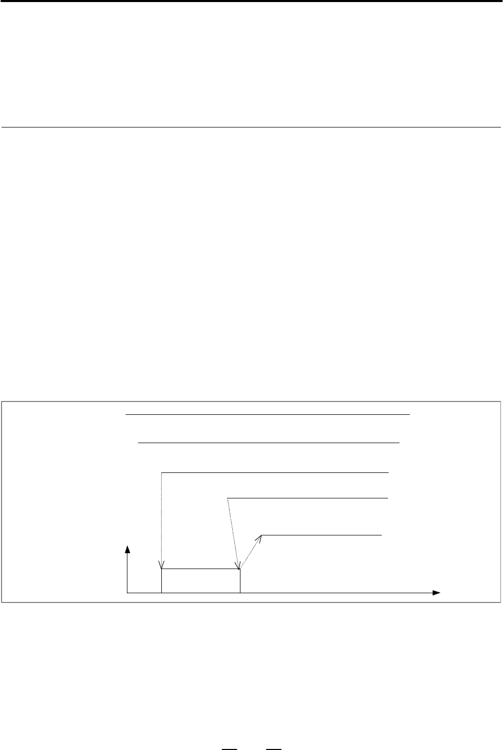
(1)Select the JOG mode, and set the manual reference position return
selection signal ZRN to ”1”.
(2)Set a direction selection signal(+J1,–J1,+J2,–J2,…) for a target axis.
(3)The axis is fed at a constant low speed (reference position return FL
feedrate specified by parameter (No.1425) setting).
(4)When the absolute position of linear scale with distance–coded
reference marks (serial) is detected, the axis stops. Then the absolute
position of CNC is calculated and reference position establishment
signal (ZRF1,ZRF2,ZRF3,+ _…) turns to ”1”.
The axis does not stop and reference position establishment is proceeded
even if the feed axis direction selection signal (+J1,–J1,+J2,–J2,…) turns
to ”0” between step (2) and (4).
The timing chart for this procedures is given below.
Reference mark
+J1
ZRN
JOG
ZRF1
Feedrate
FL rate
Fig. 4.7(c) Timing chart for reference position establishment
Specifications (linear
scale with distance–
coded reference marks
(serial))
Procedure for reference
position establishment